place
Наши филиалы: Лида

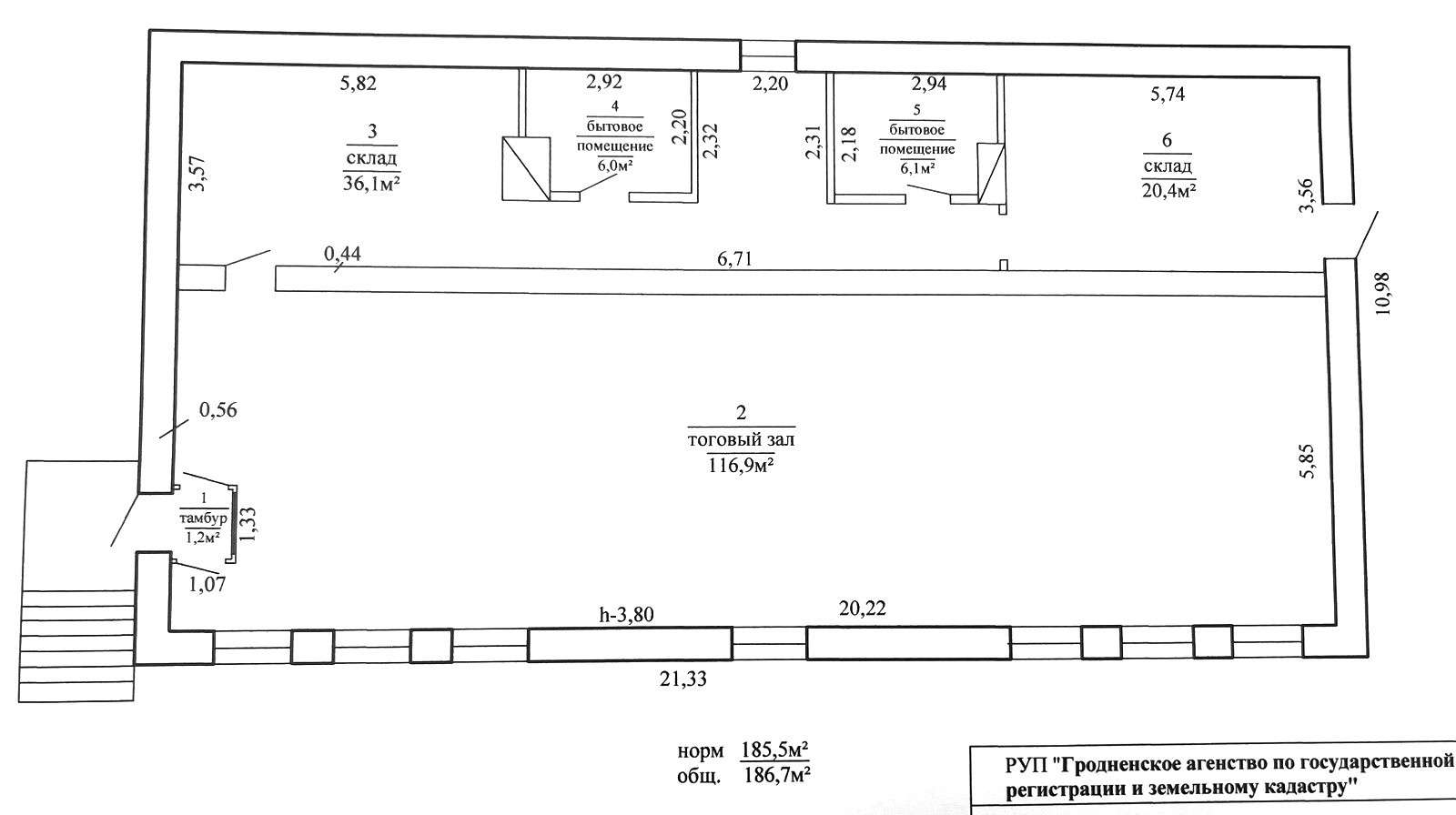
Здание

Продажа Лунно, Комсомольская, 3

Продается капитальное строение с земельным участком а.г. Лунно ул.Комсомольская дом 3 расположенный на участке площадью 9,09 соток (Земельный участок на праве постоянного пользования).

Кирпичное строение площадью 186.7 м2, нормируемая 185.5 м2 .

Коммуникации :новая электрика, отопление установлен твёрдотопливный котел.

Высота помещения 3.80 м. На участке есть такие строения как два гаража, два сарая.

Удобное месторасположение для бизнеса в центре Лунно.

Поможем продать Вашу недвижимость для покупки этого дома!

За подробной информацией просьба обращаться по телефону и пишите Viber, Telegram. Возможен торг!

75 158.16 BYN 24 900.00$ 402.56 BYN/м2 133.37$/м2
Предложить свою цену
Заполните телефон!
Введите цену или отметьте галочкой "Консультация по кредиту"
Нажимая "Отправить" я даю согласие на обработку персональных данных
Область
Гродненская область
Район области
Мостовский
Площадь, м2
186.7
Кол-во помещений
2
Этаж
1/1
Материалы дома
Кирпич
Участок, с
9
Номер и дата договора
3/17 от 10-04-2025
Посмотреть на карте