place
Наши филиалы: Лида

Здание

Аренда Гродно, Солнечная, 5

Сдаем в аренду

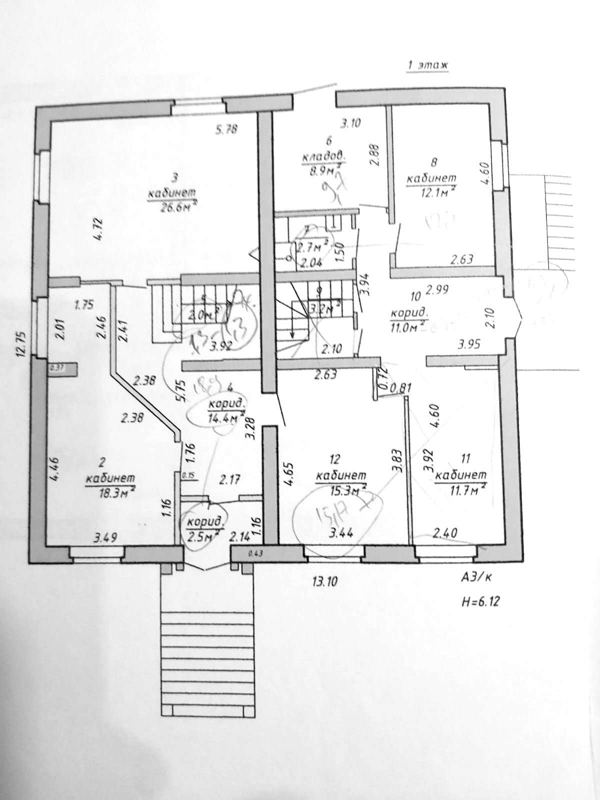
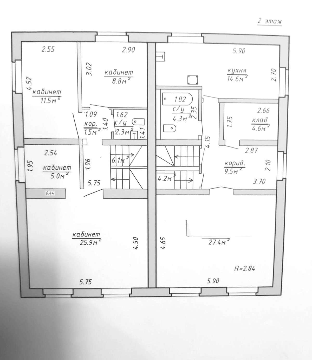
- отдельностоящее административно-хозяйственное здание, площадью 477.4 кв.м.

Огороженная территория, видеонаблюдение.

Цена 24 р/кв.м.

 

- складские помещения до 250 кв.м., не отапливаемые. Цена 8р/кв.м.

 

Расположение - Гродно, ул. Солнечная 5, в двух остановках от Советской площади.

 

Здание состоит из цокольного этажа, 1 и 2 , мансарды. Сдаем в аренду не меньше чем по одному этажу от 100 кв.м.

Помещение с ремонтом: пол – керамическая плитка, стены окрашеные, потолок подвесной. Высота потолков – 2,8 метра.

Коммуникации центральные: Электроснабжение 220 и 380 Вт, отопление, водоснабжение (холодное и горячее), канализация – есть. Освещение – естественное есть.

 

Так же есть возможность снять в аренду складские помещения (не отапливаются) на территории здания. Звоните, мы открыты к диалогу.

11 458.00 BYN 4 058.80$ 24.00 BYN/м2 8.50$/м2
Предложить свою цену
Заполните телефон!
Введите цену или отметьте галочкой "Консультация по кредиту"
Нажимая "Отправить" я даю согласие на обработку персональных данных
Область
Гродненская область
Район области
Гродненский
Район
Октябрьский
Площадь, м2
477.4
Кол-во помещений
19
Этаж
1/2
Номер и дата договора
4/2А от 17-02-2025
Посмотреть на карте