place
Наши филиалы: Лида

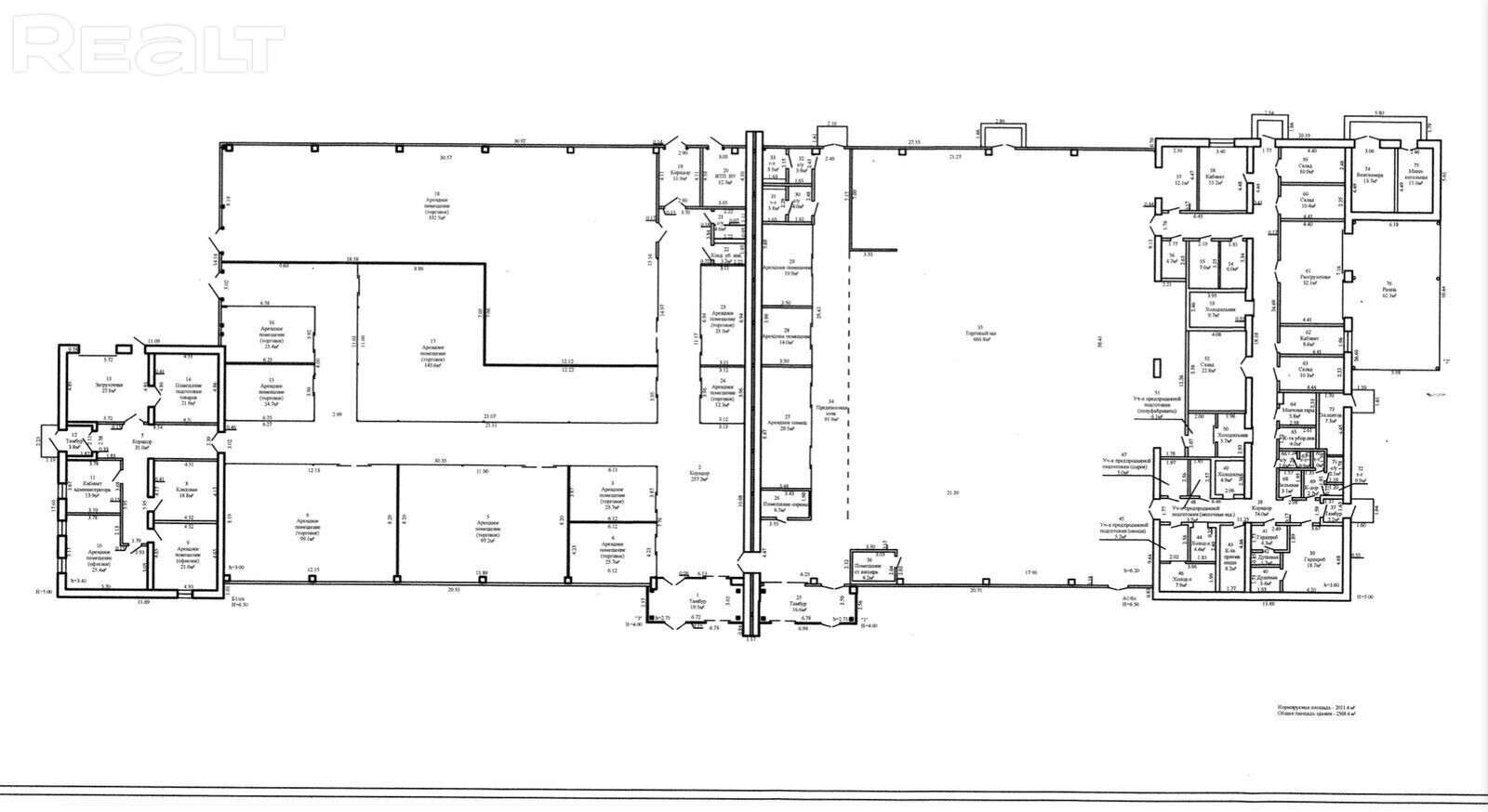
Торговое помещение

Продажа Гродно, Ленина

Продается новый современный торговый центр в г. Гродно с крупными арендаторами (готовый бизнес) с 1,2 га земли.

Здание 1-этажное, новое, материал стен – блок/сендвич панели, коммуникации все центральные, здание работает автономно со своей миникательной и электрощитовой, есть рампа, близ лежащая дорога и стоянка выложены плиткой.

Внутри хороший ремонт, система вентилирования, кондиционирования, видеонаблюдение (внутри и снаружи), большие помещения оснащены тепло пушками. Общая площадь 2 568,4 мкв

Имеется парковка, заезд крупногабаритного транспорта для выгрузкипогрузки.

Отличная локация, проходят крупные дорожные магистрали, постоянный автомобильный и пешеходный трафик, облагороженная территория сортовыми видами растений и цветов, за зданием яблочно-грушевый сад.

Возможна покупка с привлечением кредита.

4 648 336.00 BYN 1 540 000.00$ 1 810.10 BYN/м2 599.69$/м2
Предложить свою цену
Заполните телефон!
Введите цену или отметьте галочкой "Консультация по кредиту"
Нажимая "Отправить" я даю согласие на обработку персональных данных
Область
Гродненская область
Район области
Гродненский
Площадь, м2
2568
Этаж
1/1
Номер и дата договора
78/6 от 07-02-2023
Посмотреть на карте