place
Наши филиалы: Лида

Продаётся складской комплекс в г. Лида, 1-й переулок Александра Невского 1, 1а площадью 341,5 м² +129,6 м² на участке 20 соток.

 

В составе складского комплекса:

- Административно-хозяйственное здание, 1-й пер. А. Невского 1, площадью 341,5 м²

- складское помещение, 1-й пер. А. Невского 1а, площадью 129,6 м² с погрузо-разгрузочной площадкой и кран-балкой,

- участок 20 соток.

 

Объект находится вблизи Западного обхода (объездного городского полукольца) и всех основных автомагистралей города. Это обеспечивает удобное транспортное сообщение и хорошую доступность

 

Административно-хозяйственное здание и помещение склада расположены на благоустроенном участке площадью 20 соток находящемся в постоянном пользовании ООО «Оптопровод». Территория полностью огорожена.

 

АХЗ имеет электроснабжение, центральное водоснабжение, собственную котельную, обеспечивающую независимость от внешних систем отопления. Оборудована охранная и пожарная сигнализация.

 

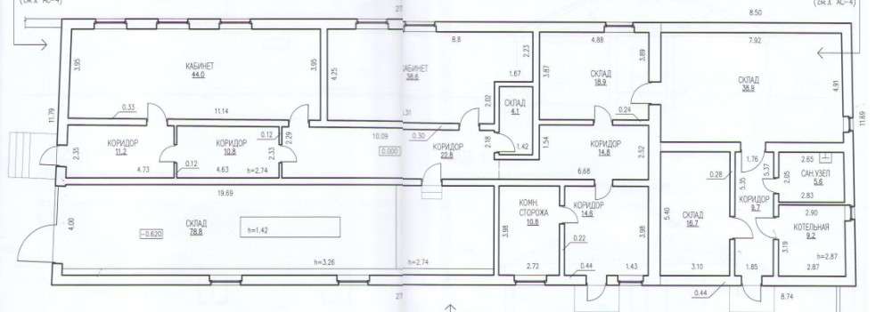
В здании имеются два офисных помещений 44 м2+38,6 м2 и выделенный кабинет руководителя; несколько складских помещений, в т.ч. отапливаемый склад 78,8 м2; несколько бытовых помещений, в т.ч. комната приёма пищи; котельная и санузел. Здание имеет три отдельных входа.

 

Проектом капитальной реконструкции здания 2015 года предусмотрена перспектива оборудования мансардного этажа 250 м2 (потенциал для расширения полезной площади). Для упрощения реализации этой перспективы на кровле установлены мансардные окна, заложен утеплитель полов и кровли.

 

Здание склада имеет два входа в виде стальных распашных ворот. Есть силовое электроснабжение и освещение, обустроена молниезащита. Перед складом оборудованы бетонированная погрузо-разгрузочная площадка, кран-балка с электрической талью грузоподъёмностью 5 т.

 

Особой изюминкой объекта является его атмосфера. Здания обрамляют многолетние ели и берёзы, на территории высажено много растений, оборудовано место отдыха с беседкой. Удалённость от промзоны, соседство с лесным массивом и ухоженная территория — это возможность дышать свежим воздухом, находясь почти в центре города.

 

Объект отлично подходит для ведения бизнеса. Возможные варианты использования объекта:

- Административное здание (офисы, учебные или медицинские центры)

- Складской комплекс

- Производственные помещения

- Торговая точка + офис + логистика.

 

Хорошее состояние объекта, отличная транспортная развязка, удобная локация, делают это предложение особенно привлекательным для бизнеса или инвестиций.

Для уточнения всех деталей звоните +375291111085

 

650 056.00 BYN 220 000.00$ 1 379.86 BYN/м2 466.99$/м2
Предложить свою цену
Заполните телефон!
Введите цену или отметьте галочкой "Консультация по кредиту"
Нажимая "Отправить" я даю согласие на обработку персональных данных
Область
Гродненская область
Район области
Лидский
Площадь, м2
471.1
Кол-во помещений
1
Этаж
1/1
Участок, с
20.16
Номер и дата договора
113/20 от 08-05-2025
Посмотреть на карте