place
Наши филиалы: Лида

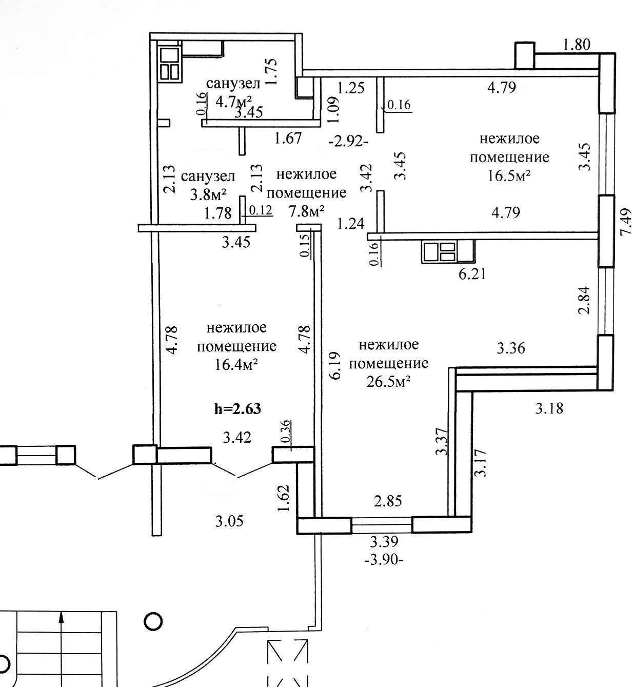
Продается коммерческое помещение, на первом этаже, по адресу Валентины Макаровой 2А. Год постройки 2023. Общая площадь 75.7 м2, жилая 67.2 м2. Современный ремонт , новая электрика( на каждую комнату свой счетчик), новая сантехника ( разведена вода и канализация в каждую комнату).

Имеются стабильные арендаторы!

Поможем продать вашу недвижимость для покупки этой!

За подробной информацией просьба обращаться по телефону и пишите Viber, Telegram.!

274 500.92 BYN 92 900.00$ 3 626.16 BYN/м2 1 227.21$/м2
Предложить свою цену
Заполните телефон!
Введите цену или отметьте галочкой "Консультация по кредиту"
Нажимая "Отправить" я даю согласие на обработку персональных данных
Область
Гродненская область
Район области
Гродненский
Район
Ленинский
Микрорайон
Грандичи-3
Площадь, м2
75.7
Кол-во помещений
3
Этаж
1/19
Год постройки
2023
Материалы дома
Панель
Номер и дата договора
303/17 от 30-07-2025
Посмотреть на карте