place
Наши филиалы: Лида

Офис

Продажа Гродно, Свердлова, 12

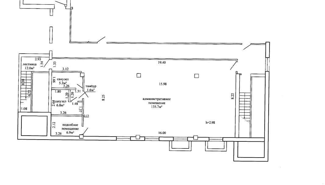
Коммерческое помещение

Ул. Свердлова, д.12

Цоколь 5 этажного дома

2018 года постройки

168,3

 

Нежилое помещение на цокольном этаже в новом монолитном доме в историческом центре города. Высота потолков 3 метра. Свободная планировка позволяет реализовать любые планировочные решения. Свой отдельный вход. Возможно приобретение с привлечением кредита!

205 833.90 BYN 69 000.00$ 1 223.01 BYN/м2 409.98$/м2
Предложить свою цену
Заполните телефон!
Введите цену или отметьте галочкой "Консультация по кредиту"
Нажимая "Отправить" я даю согласие на обработку персональных данных
Область
Гродненская область
Район области
Гродненский
Район
Ленинский
Площадь, м2
168.3
Кол-во помещений
1
Этаж
1/5
Год постройки
2018
Номер и дата договора
148/17 от 11-06-2025
Посмотреть на карте