place
Наши филиалы: Лида

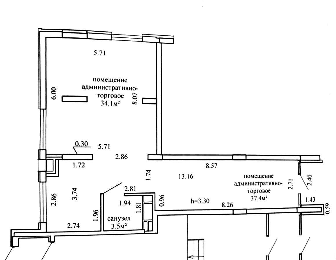
Сдаем в аренду изолированное административно-торговое помещение на первом этаже общей площадью 75 м2.

Помещение может быть использовано под офис, магазин и тд.

Территория под видеонаблюдением.

Местонахождение:

— г. Гродно, ул. Советских Пограничников д.57. Дом 2023 года постройки.

— центр города Гродно с хорошей локацией

—плотный автомобильный трафик (вашу рекламу увидят многие и про ваш бизнес узнают быстро).

— удобные подъездные пути, асфальт

Коммуникации:

— электричество: напряжение 220 Вт

— водоснабжение- центральное

— отопление- центральное

— канализация- центральная

— интернет- оптоволокно

1 954.60 BYN 675.00$ 26.06 BYN/м2 9.00$/м2
Предложить свою цену
Заполните телефон!
Введите цену или отметьте галочкой "Консультация по кредиту"
Нажимая "Отправить" я даю согласие на обработку персональных данных
Область
Гродненская область
Район области
Гродненский
Район
Октябрьский
Площадь, м2
75
Кол-во помещений
1
Этаж
1/10
Год постройки
2023
Номер и дата договора
8/6А от 17-09-2025
Посмотреть на карте