place
Наши филиалы: Лида

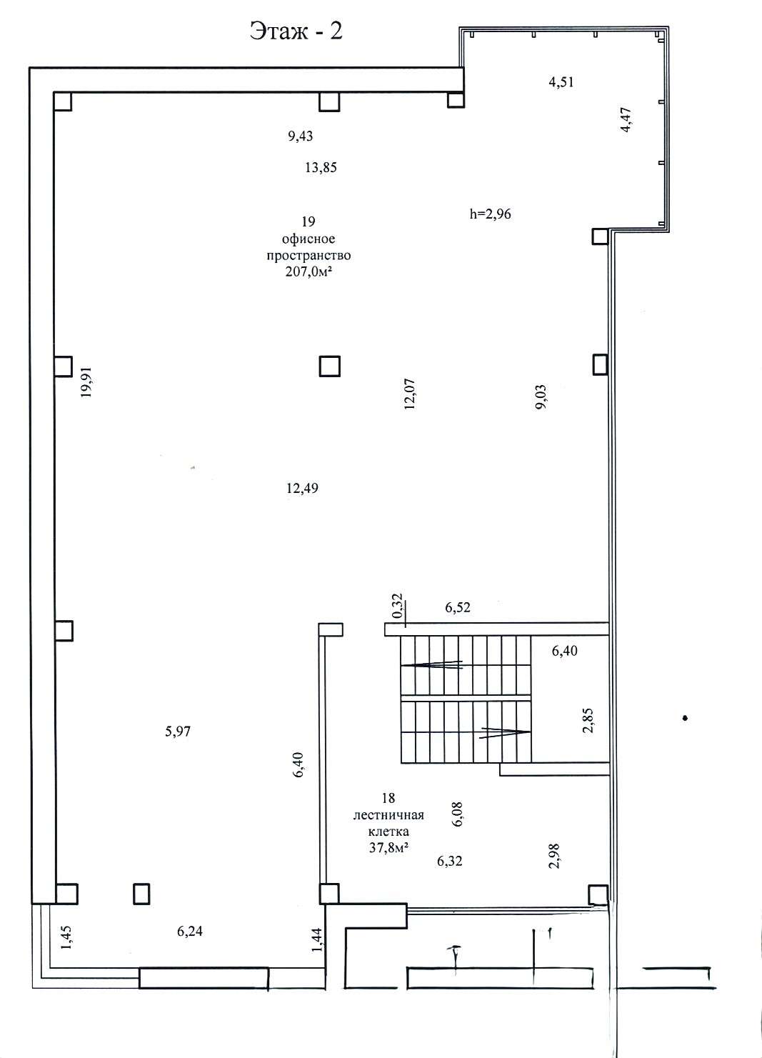
Офис

Аренда Гродно, Медовая, 1

Офисное помещение

Ул.Медовая, д.1

2/3 этажного дома

2020 года постройки

207 кв.м.

 

Сдается в аренду офисное помещение на 2 этаже 207 квадратных метров с открытым современным пространством, большими окнами, обеспечивающими светом. Open space - современное решение организации работы в офисе. Есть отдельный кабинет для переговоров. 2 санузла. Здание новое, отделка выполнена в современном стиле. Возможность Вашей рекламы на крупной афише бегущей строки в проездном месте в центральной части города. Офис укомплектован мебелью для множества посадочных рабочих мест. Работать очень комфортно и стильно! Дополнительное пользование зонами отдыха (кухней, спортзалом, игровой комнатой) оговаривается в индивидуальном порядке. Есть парковочные места за домом. Удобный подъезд.

4 691.12 BYN 1 656.00$ 22.66 BYN/м2 8.00$/м2
Предложить свою цену
Заполните телефон!
Введите цену или отметьте галочкой "Консультация по кредиту"
Нажимая "Отправить" я даю согласие на обработку персональных данных
Область
Гродненская область
Район области
Гродненский
Район
Ленинский
Площадь, м2
207
Кол-во помещений
1
Этаж
2/3
Год постройки
2020
Номер и дата договора
3/6А от 09-08-2025
Посмотреть на карте