place
Наши филиалы: Лида

Общепит

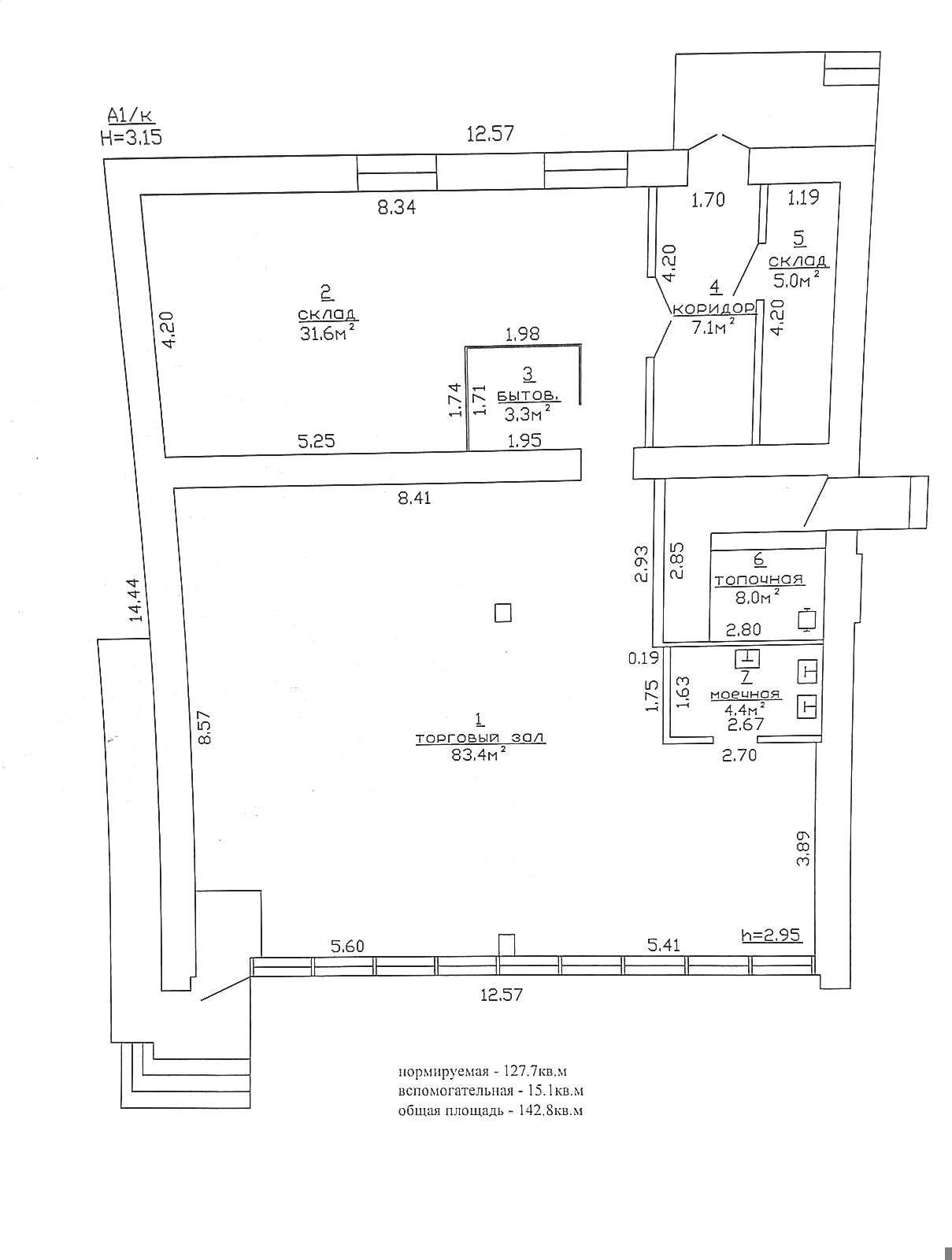
Продажа Песчанка, Шоссейная, 1

Продается капитальное строение с земельным участком на трассе М6 д. Песчанка ул. Шоссейная 1А, в 8 км от Скиделя со стороны Минска расположенный на участке площадью 9,02 соток (назначение-Земельный участок на праве аренды).

Кирпичное строение площадью 142.8 м2, нормируемая 127.7 м2 .

Коммуникации :свет, вода скважина, канализация септик, электрическое отопление (есть разрешение 32 кВт) .

Удобное месторасположение для бизнеса для Кафе или магазина прямо на трассе М6. Рядом просторный паркинг.

Поможем продать Вашу недвижимость для покупки этого дома!

За подробной информацией просьба обращаться по телефону и пишите Viber, Telegram.

95 160.89 BYN 31 900.00$ 666.39 BYN/м2 223.39$/м2
Предложить свою цену
Заполните телефон!
Введите цену или отметьте галочкой "Консультация по кредиту"
Нажимая "Отправить" я даю согласие на обработку персональных данных
Область
Гродненская область
Район области
Гродненский
Площадь, м2
142.8
Кол-во помещений
2
Этаж
1/1
Материалы дома
Кирпич
Участок, с
9
Номер и дата договора
195/6 от 03-04-2025
Посмотреть на карте