place
Наши филиалы: Лида

В продаже 1/2 доли в 3-комнатная квартира в г. Скидель по ул. Ленина д.102.

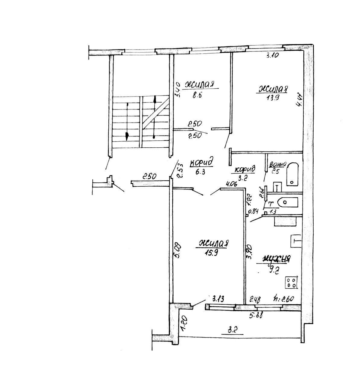
Дом панельный, 1989 года постройки . Квартира расположена на 3 этаже 5-тиэтажного дома.

Общая площадь 64 м.кв.,жилая 38,3 м.кв. Просторная кухня 9.2 м.кв. Высотапотолка 2.60м. С/у раздельный.

В квартире сделан косметический ремонт, окна деревянные. В комнатах натяжные потолки. Лоджия 3.2 м.кв., застекленнная алюминиевой рамой.

Все комнаты в квартире раздельные. Просторная прихожая.

Аккуратный и чистый подъезд, рядом с домом есть парковка для автомобилей.

 

Отличное расположение дома, рядом есть все необходимое для комфортного проживания. Магазины, ясли- сад N 4 и гимназия , Беларусбанк, Евроопт.

 

Звоните! Ответим на все интересующие Вас вопросы.

Напишите нам в удобный для Вас мессенджер: Viber | Telegram | WhatsApp

Поможем выгодно продать Вашу недвижимости для покупки этой!

Юридическое сопровождение сделки гарантируем!

23 967.20 BYN 8 000.00$ 374.49 BYN/м2 125.00$/м2
Предложить свою цену
Заполните телефон!
Введите цену или отметьте галочкой "Консультация по кредиту"
Нажимая "Отправить" я даю согласие на обработку персональных данных
Область
Гродненская область
Район области
Гродненский
Кол-во комнат квартиры
3
Площадь(О/Ж/К)
64.00/38.30/9.20
Этаж
3/5
Год постройки
1989
Материалы дома
Панель
Балконы
Лоджия: 1
Сан. узел (кол-во)
Раздельный: 1
Номер и дата договора
187/6 от 01-04-2025
Посмотреть на карте