place
Наши филиалы: Лида

комната

Продажа Гродно, Соломовой, 88

В продаже ½ доля в трехкомнатной квартире

улица Ольги Соломовой,88

3 этаж из 9.

Год постройки – 1980.

Материал стен – железобетонная панель.

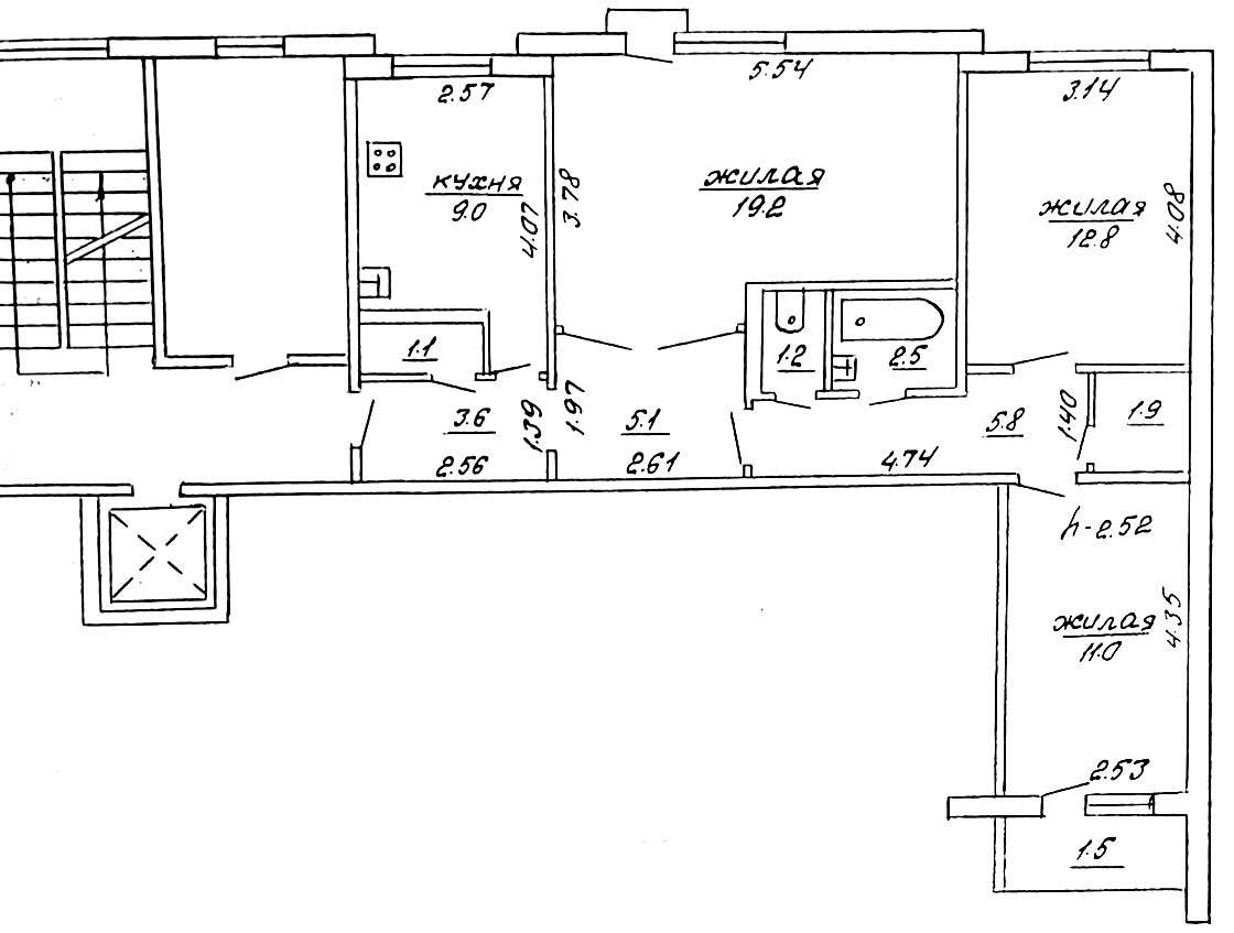
Общая площадь – 73,2 кв. м., жилая – 43 кв. м., кухня – 9 кв. м.

Квартира принадлежит двум собственникам – по одной второй равной доли у каждого. Комнаты не выделены.

Квартира в простом жилом состоянии, без современного ремонта. Чешская планировка с тремя изолированными комнатами. Есть две кладовые. Стены оклеены обоями, потолки окрашены, полы ДВП. Двустворчатые деревянные окна. Установлены счетчики на воду. Входная дверь металлическая.

Дом находится в отличном месте. Экологически чистый зеленый район. В непосредственной близости находятся разнообразные магазины, школа, детские сады. Развитая транспортная доступность во все направления города.

52 406.80 BYN 18 500.00$ 715.93 BYN/м2 252.73$/м2
Предложить свою цену
Заполните телефон!
Введите цену или отметьте галочкой "Консультация по кредиту"
Нажимая "Отправить" я даю согласие на обработку персональных данных
Область
Гродненская область
Район области
Гродненский
Район
Октябрьский
Микрорайон
Фолюш
Кол-во продаваемых комнат
1
Кол-во комнат квартиры
3
Площадь(О/Ж/К)
73.20/43.00/9.00
Этаж
3/9
Год постройки
1980
Материалы дома
Панель
Номер и дата договора
601/17 от 26-11-2025
Посмотреть на карте