place
Наши филиалы: Лида

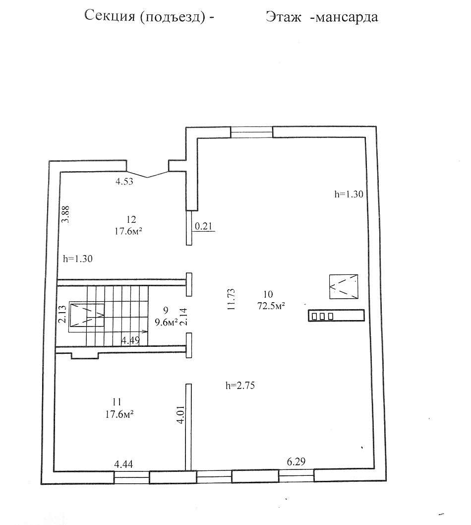
Продаётся незавершенное капитальное строение- жилой дом мансардного типа по ул. Садовой. Дом расположен в экологическом районе д. Заречанка, рядом лес и р. Неман. Участок площадью 0,2378 га находится в ПНВ. Дом общей площадью 319,7 м2, жилой 185 м2. Стены блок, кровля металлочерепица, окна ПВХ, деревянные перекрытия. По всему дому разведена электрика, канализационные трубы, а также трубы на горячую и

холодную воду. Подвал под всем домом, в котором предусмотрено помещение под котельную и прачечную. Газ подведен до угла дома, канализация септик. Более подробную информацию можно узнать по номеру. Поможем продать вашу недвижимость для покупки этой.

Возможно приобретение с привлечением кредита.

183 306.50 BYN 65 000.00$ 573.38 BYN/м2 203.32$/м2
Предложить свою цену
Заполните телефон!
Введите цену или отметьте галочкой "Консультация по кредиту"
Нажимая "Отправить" я даю согласие на обработку персональных данных
Область
Гродненская область
Район области
Гродненский
Участок, с
23.7
Площадь(О/Ж/К)
319.70/185.00/-
Количество уровней
1
Количество комнат
6
Материалы дома
Блок
Крыша
Металлочерепица
Номер и дата договора
319/6 от 11-06-2024
Посмотреть на карте