place
Наши филиалы: Лида

Дом

Продажа Гродно, Заслонова

Продается дом в тихом, спокойном месте г. Гродно, ул. Заслонова (близко к центру).

 

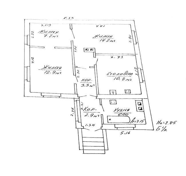
Общая площадь 111.0 кв.м., жилая – 56.7кв.м., кухня – 10.2 кв.м., 3 комнаты. Год постройки 1962. Санузел совмещенный.

На территории имеется новая баня с большой террасой, недостроенная.

Дом шлакобетонный, крыша-оцинкованная, стены оштукатурены, оклеены обоями, пол линолеум, лестница бетонная, все коммуникации центральные (вода, канализация, электричество, газ), введены и разведены по дому, окна ПВХ.

УЧАСТОК 6 соток, ровный, огорожен забором. Хорошие подъездные пути, в непосредственной близости остановка общественного транспорта, магазины, рынок, поликлиника, недалеко Лесопарк. До центра города 5 мин на машине.

Тихое, спокойное место в частном секторе, чистая зона. Отличное место для жизни в тишине среди природы и в городе.

Бесплатное сопровождение для покупателя!!! Поможем продать вашу недвижимость для покупки этой. Работаем с кредитом, семейным капиталом, жилищным балансом.

За подробной информацией просьба обращаться по телефону и пишите Viber, Telegram. Возможен торг.

194 586.90 BYN 69 000.00$ 1 753.03 BYN/м2 621.62$/м2
Предложить свою цену
Заполните телефон!
Введите цену или отметьте галочкой "Консультация по кредиту"
Нажимая "Отправить" я даю согласие на обработку персональных данных
Область
Гродненская область
Район области
Гродненский
Район
Октябрьский
Микрорайон
Собачья Горка
Участок, с
6
Площадь(О/Ж/К)
111.00/56.70/10.20
Количество уровней
1
Год постройки
1962
Количество комнат
3
Номер и дата договора
609/6 от 05-11-2024
Посмотреть на карте