place
Наши филиалы: Лида

Дача

Продажа СТ Дубок

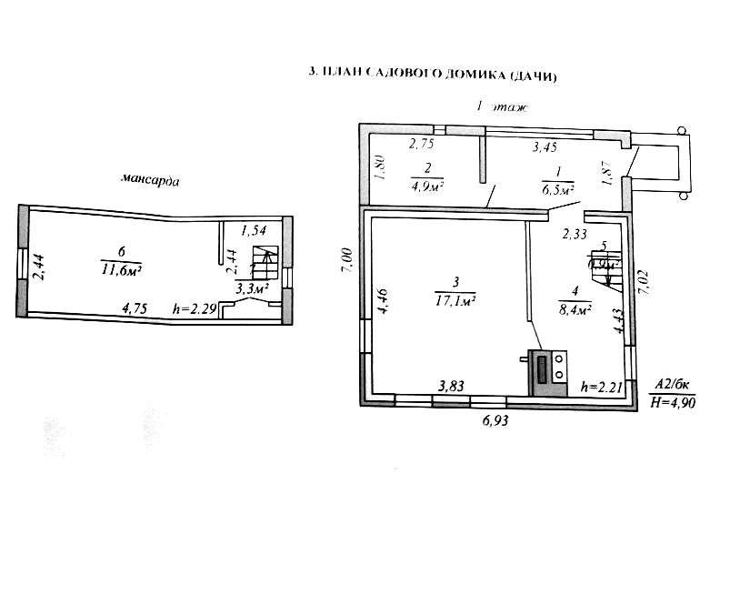
В продаже дача в тихом месте, д.Плебанишки Гожского сельсовета, СТ “Дубок”, 25 минут от города. Дачный участок площадью 8,68 соток крайний возле леса, ухожен, земля в частной собственности. Домик 1982 года постройки, одноэтажный с мансардой из блоков, облицован кирпичом. Перекрытия деревянные. Общая площадь дома 52,7 кв.м. Жилая площадь 28,7 м.кв. В доме 2 комнаты, кухня, кладовка, есть подвал. На участке расположены также теплица, сарай, колодец. Посажены яблони, вишни, смородина, крыжовник, боярышник, виноград.

39 320.10 BYN 13 500.00$ 746.12 BYN/м2 256.17$/м2
Предложить свою цену
Заполните телефон!
Введите цену или отметьте галочкой "Консультация по кредиту"
Нажимая "Отправить" я даю согласие на обработку персональных данных
Область
Гродненская область
Район области
Гродненский
Участок, с
8.68
Площадь(О/Ж/К)
52.70/28.70/-
Количество уровней
1
Год постройки
1982
Количество комнат
2
Номер и дата договора
127/17 от 29-05-2025
Посмотреть на карте