place
Наши филиалы: Лида

5 комнатная квартира

Продажа Гродно, Калинина, 26

Продается двухуровневая квартира с отличной планировкой в частном доме по ул. Калинина, 26.

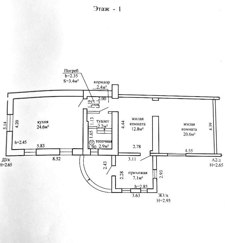
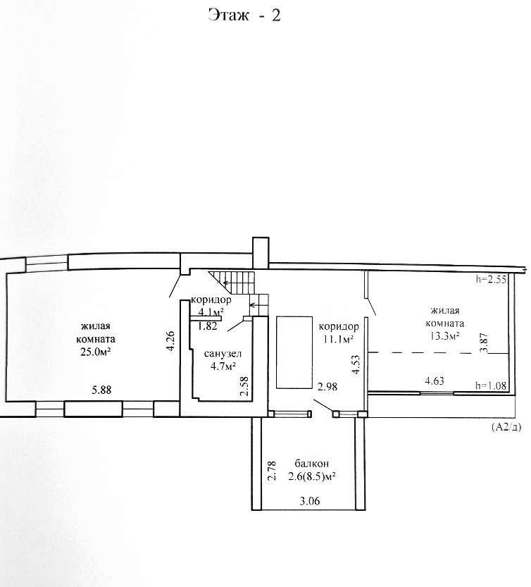
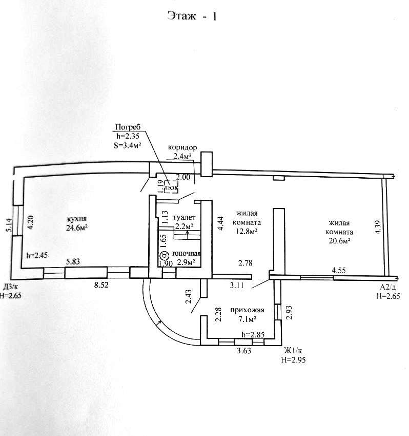
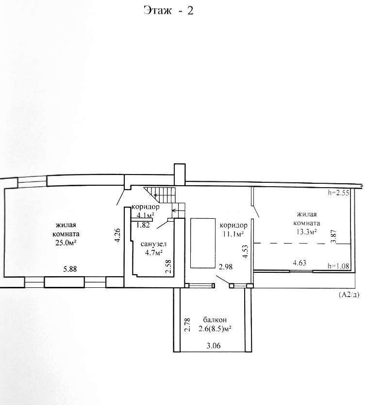
Квартира расположена на 1 и 2 этажах 2-этажного с мансардой дома 2003 года постройки. Дом построен из бруса, блоков и кирпича. На общей площади в 160,6 м.кв расположились 5 жилых комнат (99,9 м.кв), 2 совмещенных санузла, просторная кухня-столовая 24,6 м.кв. Имеется большой открытый балкон с прекрасным видом. Квартира с аккуратным ремонтом.

Ухоженный уютный двор с отдельным въездом и гаражом, участок 3,59 соток засажен многолетними туями, защищающими от шума, пыли и любопытных глаз. Недалеко от дома расположены магазины, торговый центр Тринити, Томинский лес, автозаправки. Приглашаем на показ в удобное для Вас время.

469 456.00 BYN 160 000.00$ 2 923.13 BYN/м2 996.26$/м2
Предложить свою цену
Заполните телефон!
Введите цену или отметьте галочкой "Консультация по кредиту"
Нажимая "Отправить" я даю согласие на обработку персональных данных
Область
Гродненская область
Район области
Гродненский
Район
Октябрьский
Микрорайон
Палестина
Кол-во комнат квартиры
5
Кол-во раздельных комнат
5
Площадь(О/Ж/К)
160.60/99.90/24.60
Этаж
1/2
Год постройки
2003
Материалы дома
Блок
Балконы
Балкон: 1
Сан. узел (кол-во)
Совмещенный: 2
Номер и дата договора
372/17 от 22-08-2025
Посмотреть на карте