place
Наши филиалы: Лида

4 комнатная квартира

Продажа Щучин, Комсомольская, 63

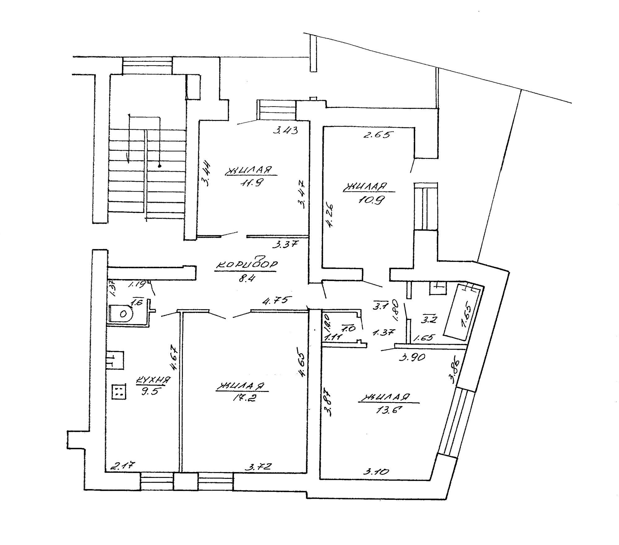
Продается 4-комнатная квартира в г. Щучин, ул. Комсомольская, д.63, на 5 этаже 5 этажного кирпичного дома 1977 года постройки, общая площадь 80,4 м.кв., жилая площадь 53,6 м.кв., кухня 9,5 м.кв., санузел раздельный. В самом центре города в (60 км от Гродно). Квартира очень теплая, просторная, требующая к себе внимания. Частично установлены стеклопакеты, счетчики воды, газа. Входная дверь металлическая, межкомнатные двери деревянные, стены оштукатурены оклеены обоями, на полу линолеум. В пешей доступности магазины, аптеки, кофе, костёл, церковь, детские сады, гимназия.

Отличный вариант для семьи в милом городке!

Окажем помощь в продаже Вашей недвижимости для покупки этой! Бесплатные консультации, работаем с привлечением кредита, жилищного баланса.

Оперативный показ и юридическое сопровождение сделки гарантируем.

За подробной информацией просьба обращаться по телефону и пишите в Viber, Telegram.

70 315.20 BYN 24 000.00$ 874.57 BYN/м2 298.51$/м2
Предложить свою цену
Заполните телефон!
Введите цену или отметьте галочкой "Консультация по кредиту"
Нажимая "Отправить" я даю согласие на обработку персональных данных
Область
Гродненская область
Район области
Щучинский
Кол-во комнат квартиры
4
Кол-во раздельных комнат
4
Площадь(О/Ж/К)
80.40/53.60/9.50
Этаж
5/5
Год постройки
1977
Материалы дома
Кирпич
Сан. узел (кол-во)
Раздельный: 1
Номер и дата договора
525/17 от 20-10-2025
Посмотреть на карте