place
Наши филиалы: Лида

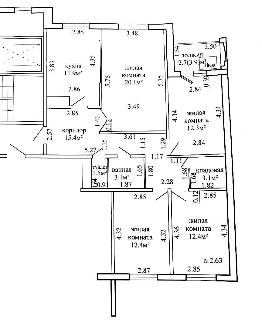
4 комнатная квартира

Продажа Гродно, Валентины Макаровой, 6

Продается просторная 4-комнатная квартира по ул. Валентины Макаровой 6 в молодом районе с уже развитой инфраструктурой! Удобный 8-й этаж из 10. Современная планировка. Год постройки - 2021. Общая площадь - 94.9 м2, жилая - 57.2 м, кухня - 11.9 м2. Санузел раздельный. Установлены стеклопакеты с защитными механизмами для безопасности детей. Окна выходят на две стороны. В квартире готовы потолки, стены прошпаклеваны и готовы к поклейке обоев. В ванной и туалете положена плитка на пол. Во дворе безопасная современная детская площадка. Дом расположен в молодом районе с уже развитой инфраструктурой: в пешей доступности школа, детские сады, амбулатория. Рядом различные магазины, торговый центр. Близость остановок общественного транспорта позволит быстро и легко добраться в любую точку Гродно. Поможем продать Вашу недвижимость для покупки этой. Работаем с привлечением кредита, семейного капитала, Жилищного баланса.

За подробной информацией просьба обращаться по телефону и пишите Viber, Telegram.

205 840.80 BYN 69 000.00$ 2 169.03 BYN/м2 727.08$/м2
Предложить свою цену
Заполните телефон!
Введите цену или отметьте галочкой "Консультация по кредиту"
Нажимая "Отправить" я даю согласие на обработку персональных данных
Область
Гродненская область
Район области
Гродненский
Район
Ленинский
Микрорайон
Грандичи-3
Кол-во комнат квартиры
4
Кол-во раздельных комнат
4
Площадь(О/Ж/К)
94.90/57.20/11.90
Этаж
8/10
Год постройки
2021
Материалы дома
Панель
Балконы
Лоджия: 1
Сан. узел (кол-во)
Раздельный: 1
Номер и дата договора
399/17 от 28-08-2025
Посмотреть на карте