place
Наши филиалы: Лида

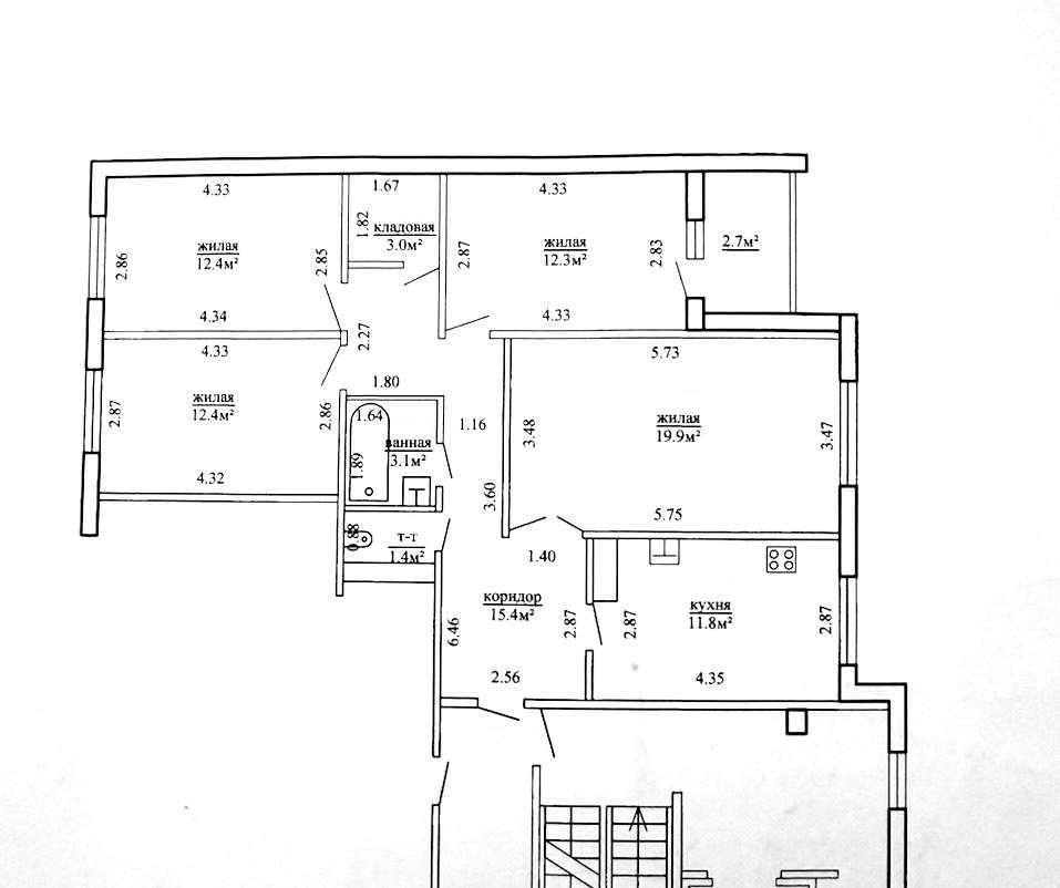
4 комнатная квартира

Продажа Гродно, Тавлая, 52

Просторная 4-комнатная квартира на 7 этаже 9-этажного панельного дома 2012 года постройки по адресу ул. Тавлая, д. 52 — идеальный выбор для комфортной жизни в современном районе! Общая площадь квартиры составляет 94,4 м², из которых 57,0 м² занимают жилые комнаты, а кухня площадью 11,8 м² станет отличным местом для семейных ужинов и встреч с друзьями.

 

Квартира отличается продуманной планировкой, что позволяет максимально эффективно использовать пространство. Светлые и просторные комнаты создают атмосферу уюта и комфорта, а большие окна наполняют квартиру естественным светом.

 

Расположение дома обеспечивает удобный доступ к инфраструктуре: рядом находятся магазины, школы, детские сады и остановки общественного транспорта. Это делает жизнь здесь максимально комфортной и удобной.

 

Не упустите возможность стать владельцем этой замечательной квартиры! Звоните прямо сейчас, чтобы записаться на просмотр и узнать больше о выгодных условиях покупки!

213 671.00 BYN 73 000.00$ 2 263.48 BYN/м2 773.31$/м2
Предложить свою цену
Заполните телефон!
Введите цену или отметьте галочкой "Консультация по кредиту"
Нажимая "Отправить" я даю согласие на обработку персональных данных
Область
Гродненская область
Район области
Гродненский
Район
Ленинский
Микрорайон
Девятовка-5
Кол-во комнат квартиры
4
Кол-во раздельных комнат
4
Площадь(О/Ж/К)
94.40/57.00/11.80
Этаж
7/9
Год постройки
2012
Материалы дома
Панель
Балконы
Лоджия: 1
Сан. узел (кол-во)
Раздельный: 1
Номер и дата договора
627/6 от 13-11-2024
Посмотреть на карте