place
Наши филиалы: Лида

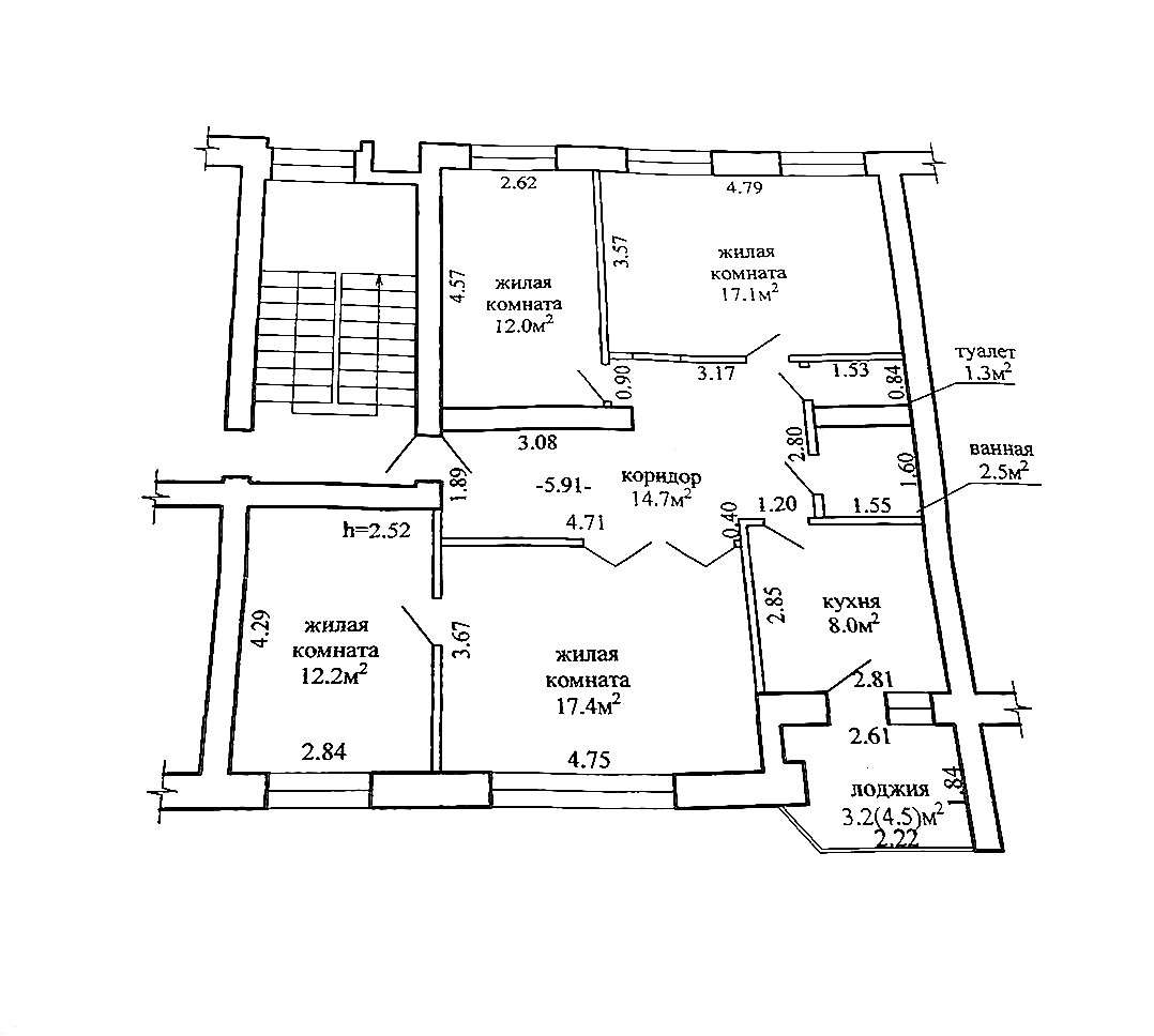
4 комнатная квартира

Продажа Гродно, Менделеева, 26

В продаже просторная 4-комнатная квартира (узаконенная перепланировка 5-комнатной) по ул.Менделеева, 26, площадь по СНБ 88.4 кв.м. Кирпичный дом 1984 г.п. Общая площадь 85.2 кв.м., жилая 58.7 кв.м., кухня 8 кв.м. Капитальный ремонт фасада здания. Заменены сантехнические трубы на пластик. Лоджия утеплена - 4.5 кв.м. Заменены все окна на стеклопакеты. На этаже расположено по две квартиры. Центральная часть города. Тихий и живописный двор с многолетними насаждения и дружелюбными соседями. Дом расположен по соседству с элитным домом 2021 г.п. Во дворе размещена современная детская площадка. Есть подвал.

Звоните, а лучше приезжайте на просмотр!

 

263 508.70 BYN 91 000.00$ 2 980.86 BYN/м2 1 029.41$/м2
Предложить свою цену
Заполните телефон!
Введите цену или отметьте галочкой "Консультация по кредиту"
Нажимая "Отправить" я даю согласие на обработку персональных данных
Область
Гродненская область
Район области
Гродненский
Район
Октябрьский
Кол-во комнат квартиры
4
Кол-во раздельных комнат
4
Площадь(О/Ж/К)
88.40/58.70/8.00
Этаж
3/5
Год постройки
1984
Материалы дома
Кирпич
Балконы
Лоджия: 1
Сан. узел (кол-во)
Раздельный: 1
Номер и дата договора
561/17 от 04-11-2025
Посмотреть на карте