place
Наши филиалы: Лида

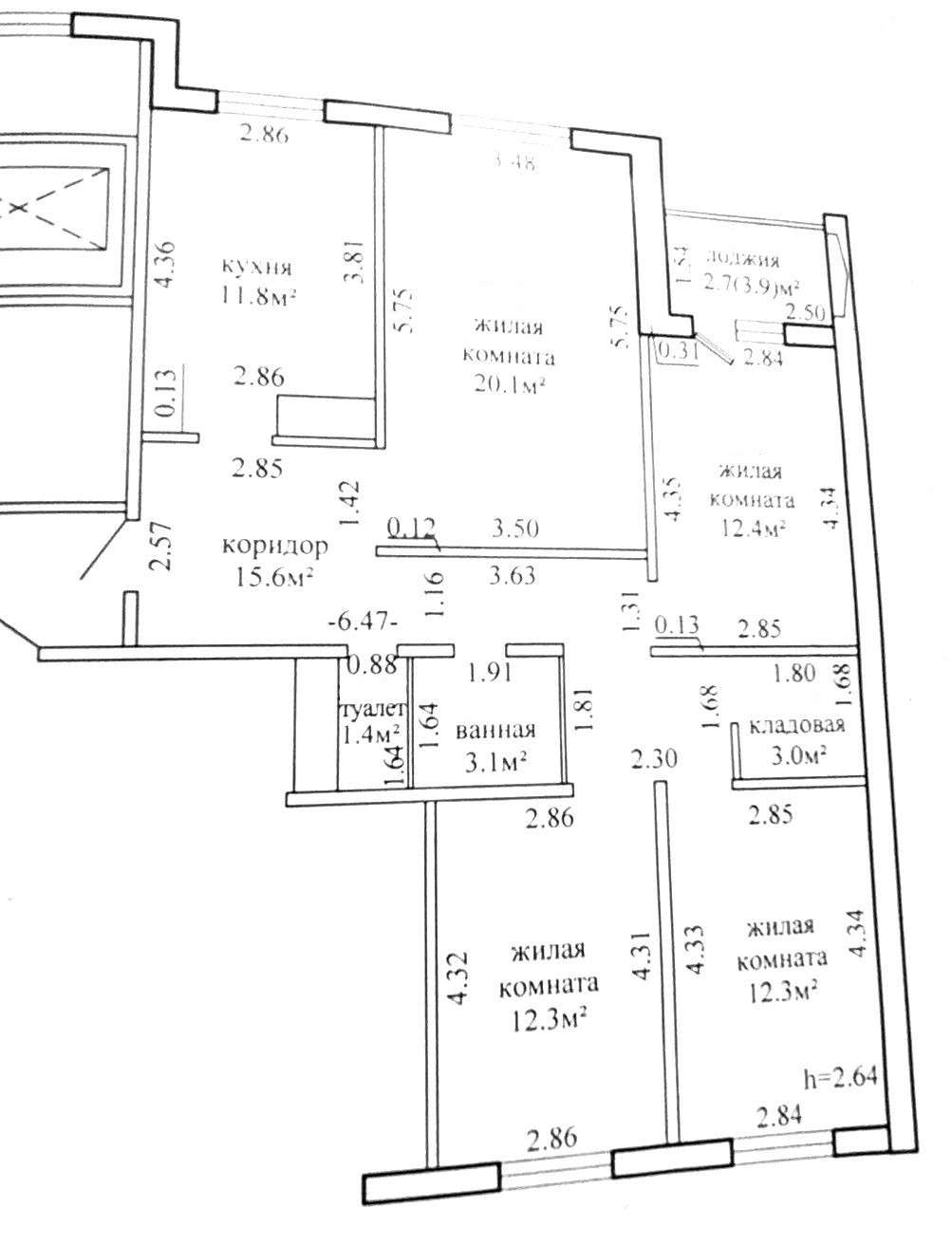
4 комнатная квартира

Продажа Гродно, Асфальтная, 57

В продаже светлая, теплая и уютная 4-комнатная квартира по ул. Асфальтная, д.57. Квартира расположена на 8 этаже девятиэтажного панельного дома 2019 года постройки.

Общая площадь -94.7 м²

Жилая - 57,1 м²

Кухня - 11,8 м²

Высота потолков - 2,64 м.

С/у раздельный, облицован плиткой.

В квартире сделан ремонт. На полу в кухне и прихожей плитка, ламинат - в жилых комнатах. Установлены стеклопакеты. Окна выходят на 2 стороны дома. Удобная планировка. Имеется гардеробная комната. Укомплектованная кухня (имеется посудомоечная машинка), установлен фильтр воды. Входная металлическая дверь. Застекленная лоджия. Имеется оборудованная подвальная ячейка.

Остается встроенная кухня, шкафы.

Ухоженная и благоустроенная дворовая территория.

Развитая инфраструктура. Во дворе дома находится детский сад. Поможем продать вашу недвижимость для приобретения этой. Возможно приобретение с любым кредитом и через кооператив «Жилищный баланс».

271 848.15 BYN 94 500.00$ 3 209.53 BYN/м2 1 115.70$/м2
Предложить свою цену
Заполните телефон!
Введите цену или отметьте галочкой "Консультация по кредиту"
Нажимая "Отправить" я даю согласие на обработку персональных данных
Область
Гродненская область
Район области
Гродненский
Район
Ленинский
Микрорайон
Грандичи-2
Кол-во комнат квартиры
4
Кол-во раздельных комнат
4
Площадь(О/Ж/К)
84.70/57.10/11.80
Этаж
8/9
Год постройки
2019
Материалы дома
Панель
Балконы
Лоджия: 1
Сан. узел (кол-во)
Раздельный: 1
Номер и дата договора
501/17 от 08-10-2025
Посмотреть на карте