place
Наши филиалы: Лида

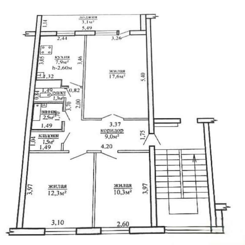
3 комнатная квартира

Продажа Зельва, Железнодорожная, 28

Продается 3-комнатная квартира в г. п. Зельва, ул. Железнодорожная, д. 28.

Квартира расположена на 5-м этаже 5-этажного панельного дома, 1996 года постройки.

Общая площадь квартиры по СНБ – 65.5 м2, общая площадь - 62.4 м2 , жилая  – 40.2 м2, кухня – 7.9 м2.

Квартира удобной планировки, с просторным коридором и раздельными комнатами, окна которых выходят на две стороны дома.

Окна – стеклопакеты.

Полы – дсп, линолеум, ламинат.

Потолки – 2.60 м, побелены.

Раздельный с/у.

Большая лоджия с выходом из гостиной.

Ухоженный подъезд, доброжелательные соседи.

Много парковочных мест возле подъезда.

В шаговой доступности есть все необходимое для комфортной жизни: школа, детский сад, несколько продовольственных магазинов (Евроопт), аптека.

Часто проводятся общественно-культурные мероприятия: Анненский кирмаш, фестиваль «Легендарные эпохи».

Расстояние: Гродно-Зельва (102 км), Барановичи-Зельва (96 км), Минск-Зельва (230 км).

По интересующим вопросам и согласованию времени звоните по указанному номеру.

 

63 703.10 BYN 23 000.00$ 1 020.88 BYN/м2 368.59$/м2
Предложить свою цену
Заполните телефон!
Введите цену или отметьте галочкой "Консультация по кредиту"
Нажимая "Отправить" я даю согласие на обработку персональных данных
Область
Гродненская область
Район области
Зельвенский
Кол-во комнат квартиры
3
Кол-во раздельных комнат
3
Площадь(О/Ж/К)
62.40/40.20/7.90
Этаж
5/5
Год постройки
1996
Материалы дома
Панель
Балконы
Лоджия: 1
Сан. узел (кол-во)
Раздельный: 1
Номер и дата договора
232/11 от 05-10-2024
Посмотреть на карте