place
Наши филиалы: Лида

3 комнатная квартира

Продажа Скидель, Ленина, 94

Продается отличная светлая и просторная 3-комнатная квартира , расположенная в уютном востребованном районе по ул. Ленина 94 ,в г. Скиделе. Панельный дом 1983 года, 4 этаж из 5.

Уютный двор , удобная большая парковка , хорошая детская площадка, аккуратный чистый подьезд, спокойные соседи сделают ваше проживание комфортным.

Развитая инфраструктура дома (магазины, евроопт, детский сад, гимназия ) , транспортная развязка существенно сэкономят время прибывания в пути .

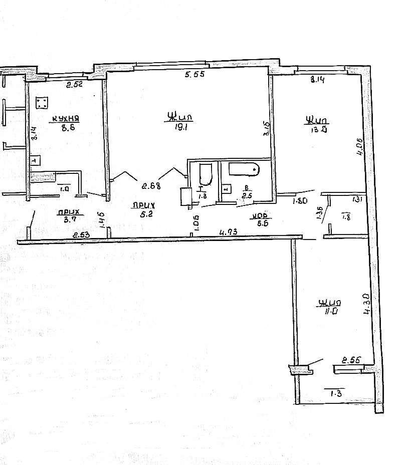
Квартира в хорошем состоянии. Радует отличная планировка. Окна выходят на обе стороны дома.

Параметры квартиры: общая площадь- 72,6 кв м, жилая площадь- 43,1 кв м, кухня- 8,6 кв м.

Материал полов: линолеум. Окна ПВХ. Надежная входная металлическая дверь .Санузел раздельный. Имеется застекленный балкон, кладовка в квартире и кладовка на этаже.

 

Идеально подойдет всем, кто ценит хорошее расположение дома , удобную планировку и развитую инфраструктуру района.

Более подробно- по телефону.

Звоните!

А лучше- приезжайте!

Оперативный показ и юридическое сопровождение сделки гарантируем!

Продадим вашу недвижимость для покупки этой. Работаем с кредитами и с Жилищным балансом.

89 496.00 BYN 30 000.00$ 1 232.72 BYN/м2 413.22$/м2
Предложить свою цену
Заполните телефон!
Введите цену или отметьте галочкой "Консультация по кредиту"
Нажимая "Отправить" я даю согласие на обработку персональных данных
Область
Гродненская область
Район области
Гродненский
Кол-во комнат квартиры
3
Кол-во раздельных комнат
3
Площадь(О/Ж/К)
72.60/43.10/8.60
Этаж
4/5
Год постройки
1983
Материалы дома
Панель
Балконы
Балкон застеклен: 1
Сан. узел (кол-во)
Раздельный: 1
Номер и дата договора
21/6 от 20-01-2025
Посмотреть на карте