place
Наши филиалы: Лида

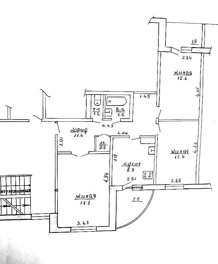
3 комнатная квартира

Продажа Скидель, Ленина, 82

Продается хорошая 3-комнатная квартира в г. Скидель по ул. Ленина, д.82

Панельный дом 1991 года постройки. Квартира находится на 4 этаже 5-этажного дома.

Общая площадь по СНБ 71.3 м2, общая площадь 66.9 м2 , жилая 41,9м2, кухни 8,9м2, высота потолков 2,60м2

Квартира просторная, уютная, теплая, окна выходят на обе стороны, подъезд чистый и аккуратный, всегда есть возможность припарковать свой автомобиль.

Рядом с домом находится все для комфортной жизни: магазины, евроопт, детский сад, гимназия, хорошая транспортная развязка.

Звоните-ответим на ваши вопросы!

Юридическая чистота сделки!

102 543.00 BYN 35 000.00$ 1 532.78 BYN/м2 523.17$/м2
Предложить свою цену
Заполните телефон!
Введите цену или отметьте галочкой "Консультация по кредиту"
Нажимая "Отправить" я даю согласие на обработку персональных данных
Область
Гродненская область
Район области
Гродненский
Кол-во комнат квартиры
3
Кол-во раздельных комнат
3
Площадь(О/Ж/К)
66.90/41.90/8.90
Этаж
4/5
Год постройки
1991
Материалы дома
Панель
Балконы
Лоджия: 1
Балкон: 1
Сан. узел (кол-во)
Раздельный: 1
Номер и дата договора
647/17 от 22-12-2025
Посмотреть на карте