place
Наши филиалы: Лида

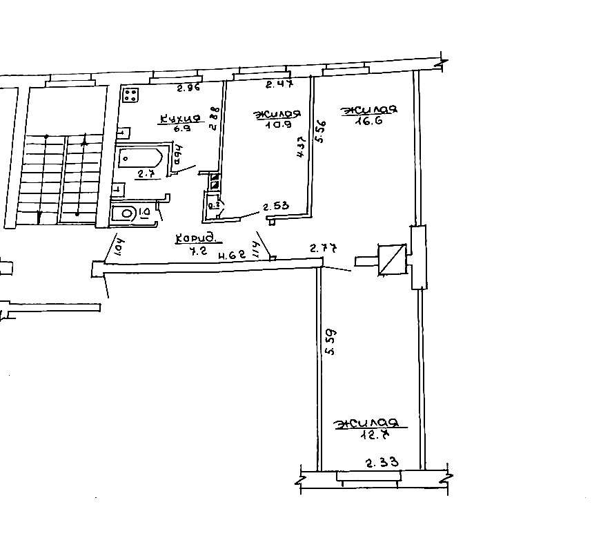
3 комнатная квартира

Продажа Скидель, Клубная, 20

В продаже просторная 3-комнатная квартира в г. Скидель по ул. Клубная, д. 20.

Дом кирпичный, 1967 года постройки. Квартира расположена на 2 этаже 2-этажного дома.

Общая площадь 58.1 м.кв., жилая 40.2 м.кв, кухня 6,9 м.кв. Высота потолка 2.5 м. С/у раздельный.

Квартира с косметическим ремонтом.

Аккуратный и чистый подъезд, рядом с домом есть парковка для автомобилей. За квартирой закреплен участок земли. Имеется подвал.

Отличное расположение дома, рядом есть все необходимое для комфортного проживания. Магазины, ясли- сад, банк, школа.

Звоните! Ответим на все интересующие Вас вопросы.

Поможем выгодно продать Вашу недвижимости для покупки этой!

Юридическое сопровождение сделки гарантируем! Работаем с привлечением кредита, семейного капитала, "Жилищного баланса".

55 887.01 BYN 19 300.00$ 961.92 BYN/м2 332.19$/м2
Предложить свою цену
Заполните телефон!
Введите цену или отметьте галочкой "Консультация по кредиту"
Нажимая "Отправить" я даю согласие на обработку персональных данных
Область
Гродненская область
Район области
Гродненский
Кол-во комнат квартиры
3
Кол-во раздельных комнат
3
Площадь(О/Ж/К)
58.10/40.20/6.90
Этаж
2/2
Год постройки
1967
Материалы дома
Кирпич
Балконы
Нет
Сан. узел (кол-во)
Раздельный: 1
Номер и дата договора
541/17 от 23-10-2025
Посмотреть на карте