place
Наши филиалы: Лида

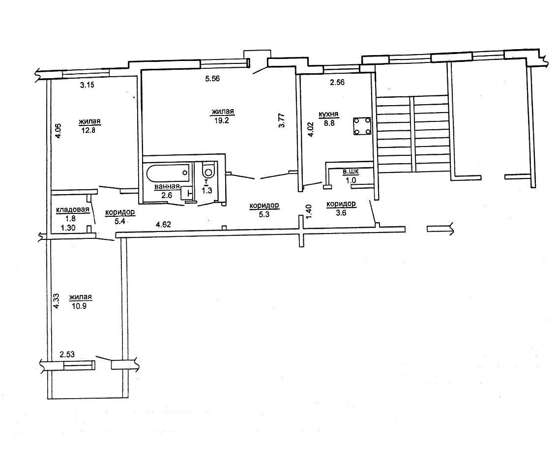
3 комнатная квартира

Продажа Щучин, Островского, 19

В продаже просторная 3-х комнатная квартира с ремонтом в развитом районе г. Щучин, по ул. Островского дом 19. Панельный дом 1977 года. 5 этаж из 5. Уютный двор с множеством зеленых насаждений и достаточным количеством парковочных мест. В "двух шагах" оборудованный городской пляж у реки Туровка, прогулочные аллеи - излюбленное место ежедневных прогулок горожан. Близость к центру города! Развитая инфраструктура района: множество магазинов, аптеки, отделения банка, школа 2, больница, остановки общественного транспорта и т.д.

Параметры квартиры: площадь (кв.м) общая – 72.7 м, жилая- 42,9 м, кухня-8.8 м. Качественная входная металлическая дверь. Всё окна ПВХ. Производился капитальный ремонт квартиры с заменой электрики (по евро стандарту), залитием стяжки. В квартире есть все необходимое для комфортного проживания! Материал полов: плитка (прихожая, кухня), ламинат (комнаты, коридор). Санузел облицован плиткой. Материал стен - обои. Межкомнатные двери из натурального дерева (массив). Аккуратный подъезд и придомовая территория. За дополнительной информацией просьба обращаться по номеру телефона. Возможен торг.

104 382.17 BYN 34 990.00$ 1 435.78 BYN/м2 481.29$/м2
Предложить свою цену
Заполните телефон!
Введите цену или отметьте галочкой "Консультация по кредиту"
Нажимая "Отправить" я даю согласие на обработку персональных данных
Область
Гродненская область
Район области
Щучинский
Кол-во комнат квартиры
3
Кол-во раздельных комнат
3
Площадь(О/Ж/К)
72.70/42.90/8.80
Этаж
5/5
Год постройки
1977
Материалы дома
Панель
Балконы
Балкон: 1
Сан. узел (кол-во)
Раздельный: 1
Номер и дата договора
351/17 от 13-08-2025
Посмотреть на карте