place
Наши филиалы: Лида

3 комнатная квартира

Продажа Ратичи, Новая, 1А

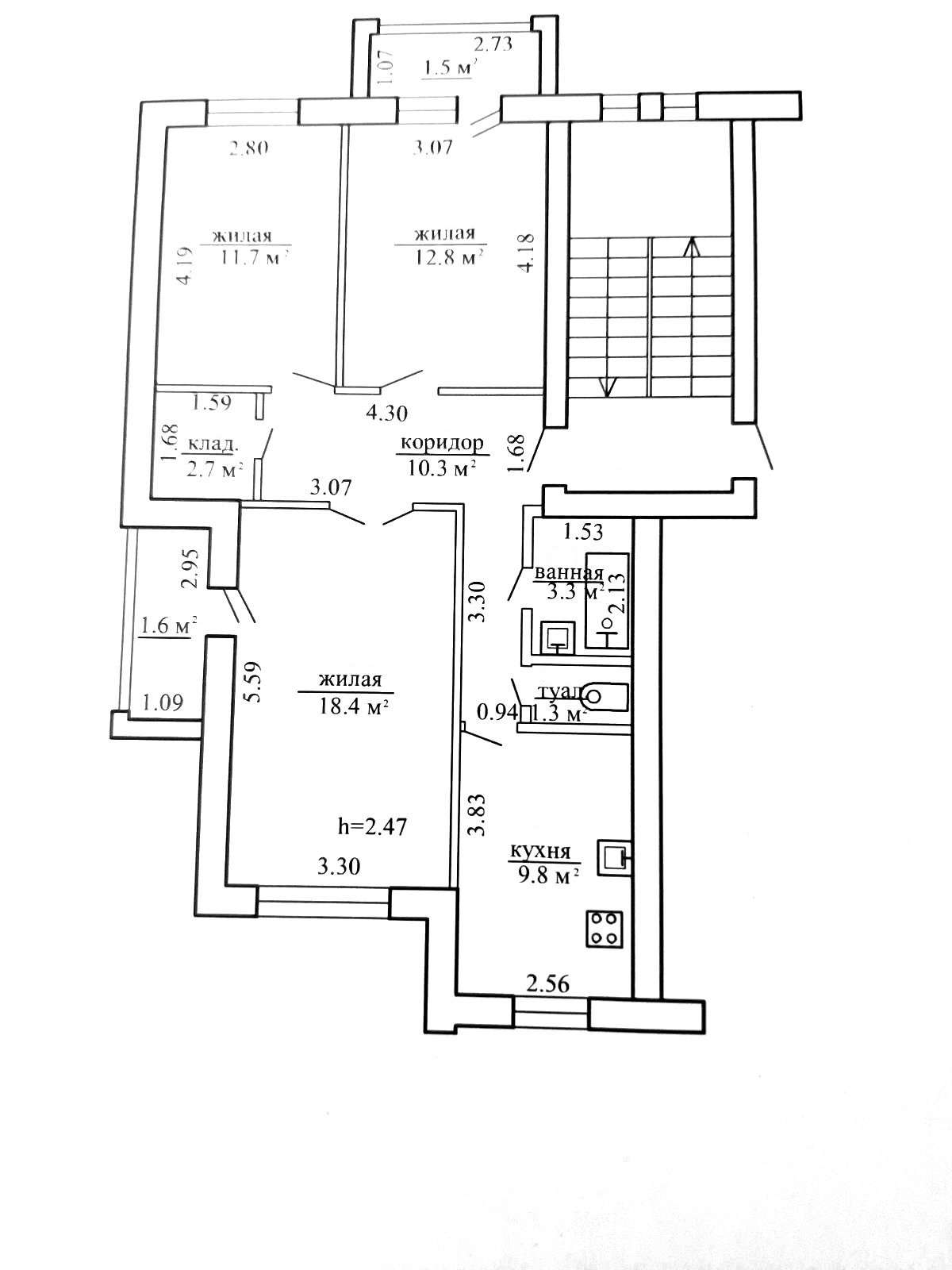
Продается просторная 3-комнатная квартира в 15 км от Гродно, в аг. Ратичи. Квартира расположена на 1-ом этаже 2-этажного блочного дома 2007 года постройки. Общая площадь квартиры 70,5 м2, жилая 42,9 м2, кухня – 9,8 м2. Имеется 2 лоджии. Санузел раздельный. Для горячего водоснабжения используется газовая колонка. Ремонт – забота будущего собственника.

В агрогородке есть все для комфортного проживания: школа, магазины, почта, банк, ФАП. Хорошее транспортное сообщение с городом.

Показы объекта по предварительной записи.

80 547.60 BYN 28 000.00$ 1 142.51 BYN/м2 397.16$/м2
Предложить свою цену
Заполните телефон!
Введите цену или отметьте галочкой "Консультация по кредиту"
Нажимая "Отправить" я даю согласие на обработку персональных данных
Область
Гродненская область
Район области
Гродненский
Кол-во комнат квартиры
3
Кол-во раздельных комнат
3
Площадь(О/Ж/К)
70.50/42.90/9.80
Этаж
1/2
Год постройки
2007
Материалы дома
Блок
Балконы
Лоджия: 2
Сан. узел (кол-во)
Раздельный: 1
Номер и дата договора
480/6 от 27-08-2024
Посмотреть на карте