place
Наши филиалы: Лида

3 комнатная квартира

Продажа Мосты, Юности, 6

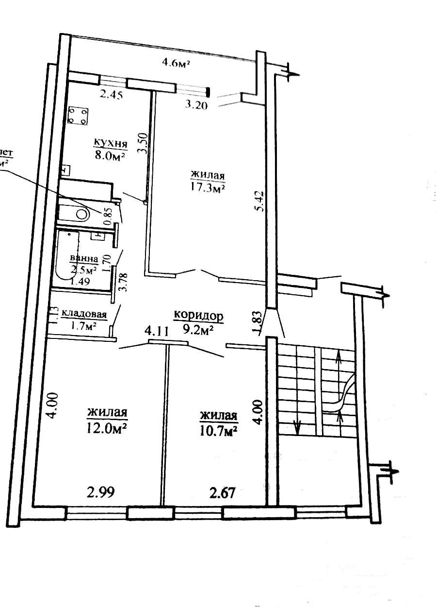
В продаже 3-комнатная квартира по пр-ту Юности, г. Мосты. 4/5-этажного панельного дома 1988 г.п. Общая пл. 62.7 кв.м., жилая - 40.0 кв.м., кухня – 8.0 кв.м. Застекленная лоджия 4.6 кв.м. Высота потолка 2.54 м. Выполнен хороший ремонт. На полу стяжка (ламинированные полы и керамическая плитка), на стенах - обои, стеклопакеты. Продажа с мебелью и бытовой техникой. В квартире вместительная кладовая с полками. Хорошие соседи. Возможна продажа по кредиту.

74 580.00 BYN 25 000.00$ 1 189.46 BYN/м2 398.72$/м2
Предложить свою цену
Заполните телефон!
Введите цену или отметьте галочкой "Консультация по кредиту"
Нажимая "Отправить" я даю согласие на обработку персональных данных
Область
Гродненская область
Район области
Мостовский
Кол-во комнат квартиры
3
Кол-во раздельных комнат
3
Площадь(О/Ж/К)
62.70/40.00/8.00
Этаж
4/5
Год постройки
1988
Материалы дома
Панель
Балконы
Лоджия: 1
Сан. узел (кол-во)
Раздельный: 1
Номер и дата договора
370/17 от 22-08-2025
Посмотреть на карте