place
Наши филиалы: Лида

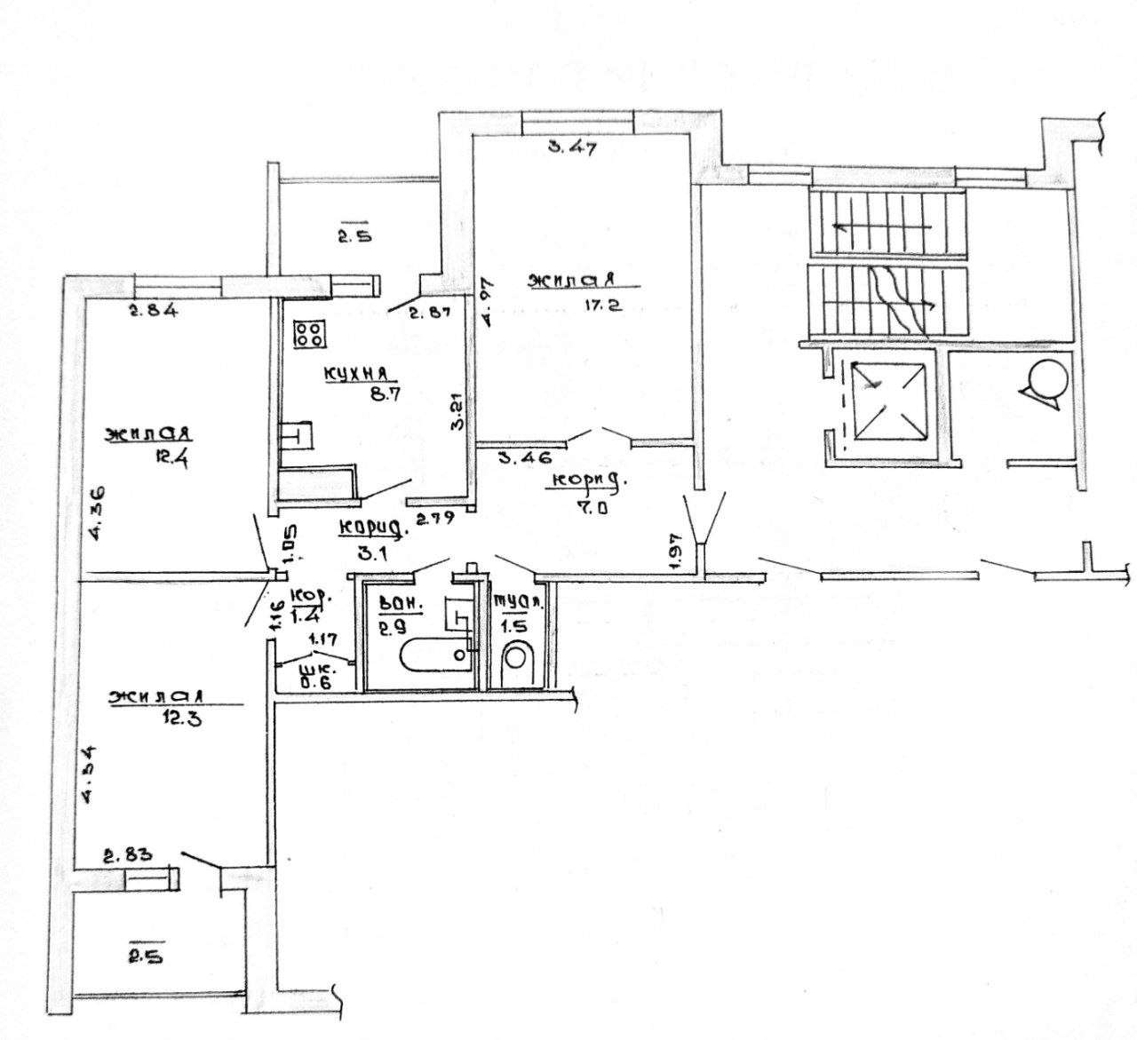
3 комнатная квартира

Продажа Лида, Тухачевского, 103

Продается 3-комнатная квартира по адресу ул.Тухачевского,103.

Расположена квартира на четвёртом этаже девятиэтажного дома.

Общая площадь квартиры составляет 67,1 кв.м. из которых 41.9 кв.м. приходятся на жилую площадь и 8,7 кв.м на кухню.

В квартире выполнен хороший ремонт. Окна в квартире ПВХ,в комнатах пол-ламинат,кухня-плитка. Ванна и туалет облицованы плиткой.

Также в квартире имеется 2 лоджии,2 подвала.

При необходимости поможем продать Вашу недвижимость.

Покупатель не платит за услуги агентства, но приобретет юридически проверенную недвижимость!

Звоните и пишите на удобный для Вас мессенджер.

167 059.20 BYN 56 000.00$ 2 489.72 BYN/м2 834.58$/м2
Предложить свою цену
Заполните телефон!
Введите цену или отметьте галочкой "Консультация по кредиту"
Нажимая "Отправить" я даю согласие на обработку персональных данных
Область
Гродненская область
Район области
Лидский
Микрорайон
Красноармейский
Кол-во комнат квартиры
3
Кол-во раздельных комнат
3
Площадь(О/Ж/К)
67.10/41.90/8.70
Этаж
4/9
Год постройки
1999
Материалы дома
Панель
Балконы
Лоджия: 1
Сан. узел (кол-во)
Раздельный: 1
Высота потолка
2.65
Номер и дата договора
51/20 от 11-02-2025
Посмотреть на карте