place
Наши филиалы: Лида

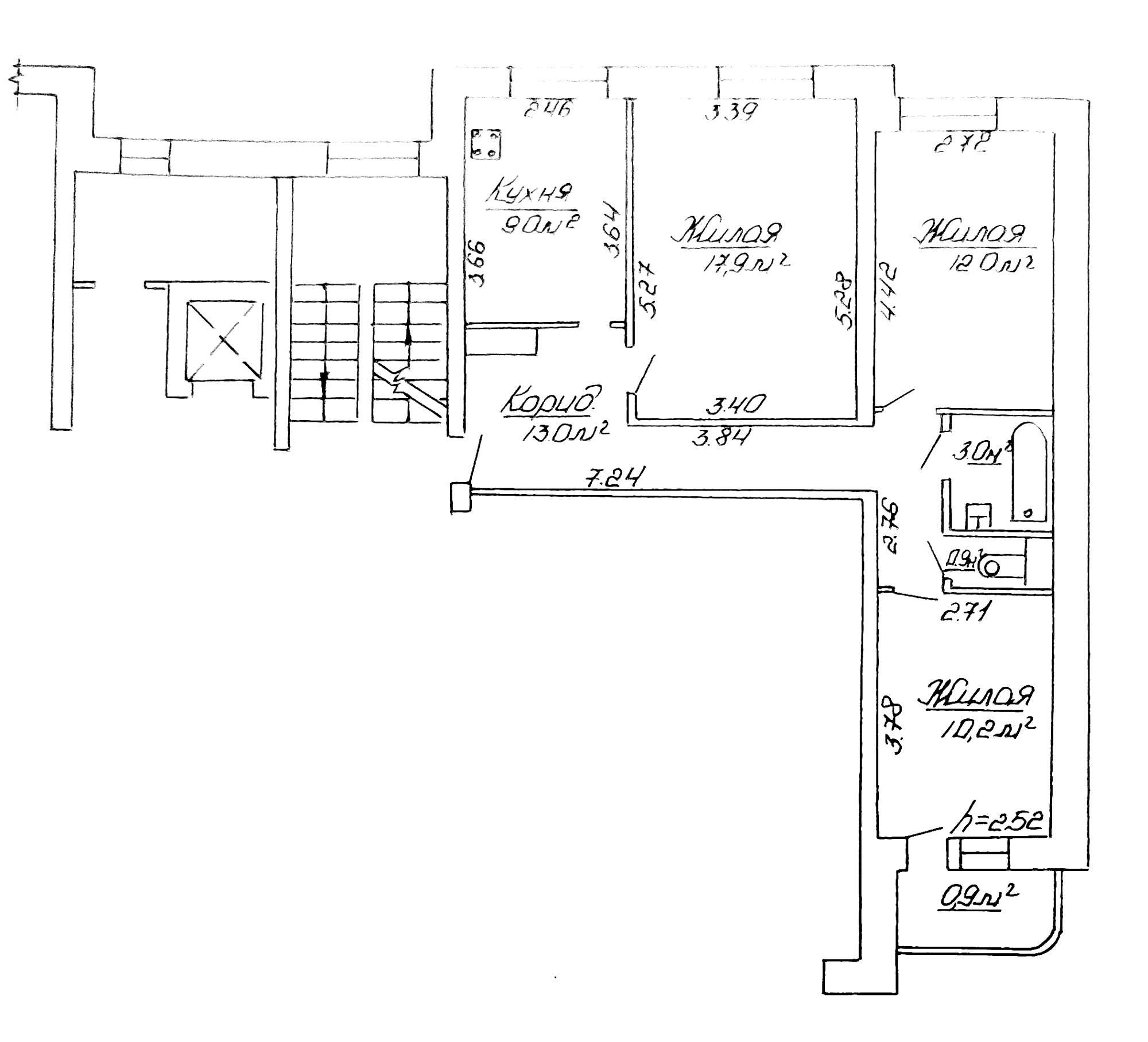
3 комнатная квартира

Продажа Гродно, Южная, 5

Продается просторная светлая 3- комнатная квартира оригинальной планировки.

Блочный дом 2001 года ул. Южная, д. 5

Идеальный 7-й этаж 7-этажного дома. Никаких соседей над головой. Над вами только техэтаж. Лифт.

66,9/40,1/9,0 м2

Уютная функциональная кухня 9,0 м2 с дверью из массива. Новый функциональный кухонный гарнитур с современной фурнитурой. Для вашего комфорта остается вся мебель по согласованию. вместительные шкафы купе в прихожей и комнате.

Санузел – раздельный. Аккуратная ванная комната. Удобная современная функциональная сантехника.

Уютная застекленная лоджия с приятным видом из окна.

Видеонаблюдение в подъезде и вокруг дома. За квартирой закреплено вместительное подвальное помещение.

Приятный вид из окон с отличным обзором. Аккуратный ремонт во всей квартире. Правильно подобранное цветовое решение в светлых тонах создает единое пространство. По всей квартире выполнено распределенное освещение создающее ощущение уюта. Установлены счетчики на газ, воду и свет.

Входная металлическая дверь премиум класса. Двухкамерные стеклопакеты на окнах в двух комнатах. Стеклопакеты в кухне и гостиной. Материал полов: качественный износоустойчивый ламинат. В гостиной линолеум. В кухне и прихожей узорная качественная керамическая плитка.

Удобное оптимальное расположение дома. Развитая социальная, потребительская и транспортная инфраструктура. В шаговой доступности ТК «Тринити», продовольственные магазины, автозаправка, Поликлиника №7, Баня Вишневец, Школы №38, 40, детские сады, аптеки, остановки общественного транспорта, лесопарк Румлево, река Неман, Рынок «Южный».

Уютный двор, приятный вид из окон на две противоположные стороны, аккуратный просторный подьезд сделают ваше проживание комфортным. Рядом с домом несколько удобных парковок, большая детская площадка.

Поможем продать вашу недвижимость для приобретения новой. Полное юридическое сопровождение сделки. Возможно приобретение с кредитом и через кооператив «Жилищный баланс»

Звоните! А лучше- приезжайте! Оперативный показ и юридическое сопровождение сделки гарантируем. Торг при осмотре.

 

205 459.20 BYN 72 000.00$ 3 071.13 BYN/м2 1 076.23$/м2
Предложить свою цену
Заполните телефон!
Введите цену или отметьте галочкой "Консультация по кредиту"
Нажимая "Отправить" я даю согласие на обработку персональных данных
Область
Гродненская область
Район области
Гродненский
Район
Октябрьский
Микрорайон
Вишневец-4
Кол-во комнат квартиры
3
Кол-во раздельных комнат
3
Площадь(О/Ж/К)
66.90/40.10/9.00
Этаж
7/7
Год постройки
2001
Материалы дома
Блок
Балконы
Лоджия: 1
Сан. узел (кол-во)
Раздельный: 1
Номер и дата договора
417/17 от 03-09-2025
Посмотреть на карте