place
Наши филиалы: Лида

3 комнатная квартира

Продажа Гродно, Виктора Глухова, 24

Представляем вашему вниманию просторную трехкомнатную квартиру, расположенную на 2-ом этаже 8-этажного панельного дома 2021 года постройки. Дом находится в молодом, динамично развивающемся микрорайоне Грандичи, по адресу: ул. Виктора Глухова, 24.

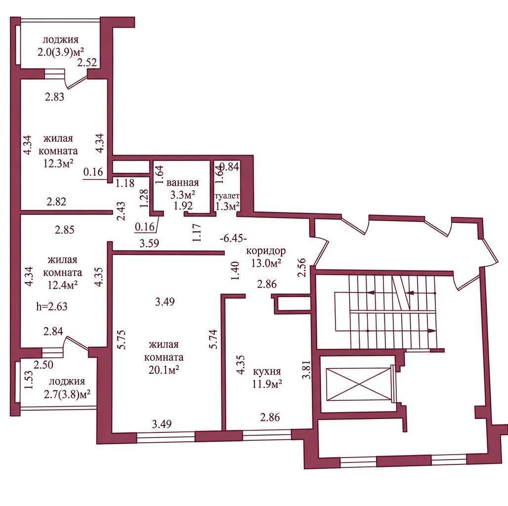
Общая площадь квартиры по СНБ составляет 79 м², жилая — 45 м². Квартира радует своей удачной планировкой: просторные комнаты по 12,4 м², каждая из которых их имеется выход на обустроенную лоджию, гостиная - 20 м2. Большая и светлая кухня, площадью 12 м² , укомплектована кухонным гарнитуром и бытовой техникой.

На полу в комнатах уложен ламинат, в коридоре — плитка. Санузел и ванная комната облицованы плиткой, двери выполнены в едином стиле, качественная металлическая входная дверь.

Благоустроенный двор с детской площадкой, с концепцией «двор без машин». В шаговой доступности — вся необходимая инфраструктура для комфортной жизни: остановки общественного транспорта, продовольственные магазины, аптеки, школа. детский сад. Отличное транспортное сообщение и удобные подъездные пути позволят вам быстро добраться в любую точку города.

Мы готовы оказать помощь в продаже вашей недвижимости для покупки этой замечательной квартиры. Гарантируем полное юридическое сопровождение сделки. Работаем с различными формами оплаты: кредит, семейный капитал, жилищный баланс. Звоните, будем рады выслушать ваши предложения! Рассмотрим обмен на 2-х комнатную квартиру с Вашей доплатой.

264 027.31 BYN 89 900.00$ 3 342.10 BYN/м2 1 137.97$/м2
Предложить свою цену
Заполните телефон!
Введите цену или отметьте галочкой "Консультация по кредиту"
Нажимая "Отправить" я даю согласие на обработку персональных данных
Область
Гродненская область
Район области
Гродненский
Район
Ленинский
Микрорайон
Грандичи-3
Кол-во комнат квартиры
3
Кол-во раздельных комнат
3
Площадь(О/Ж/К)
79.00/45.00/12.00
Этаж
2/8
Год постройки
2021
Материалы дома
Панель
Балконы
Лоджия: 1
Сан. узел (кол-во)
Раздельный: 1
Номер и дата договора
220/17 от 18-03-2026
Посмотреть на карте