place
Наши филиалы: Лида

3 комнатная квартира

Продажа Гродно, Свердлова, 11

Трехкомнатная квартира в центре Гродно

Улица Свердлова,11

2 этаж из 4

Год постройки – 1974

Кирпичный дом

 

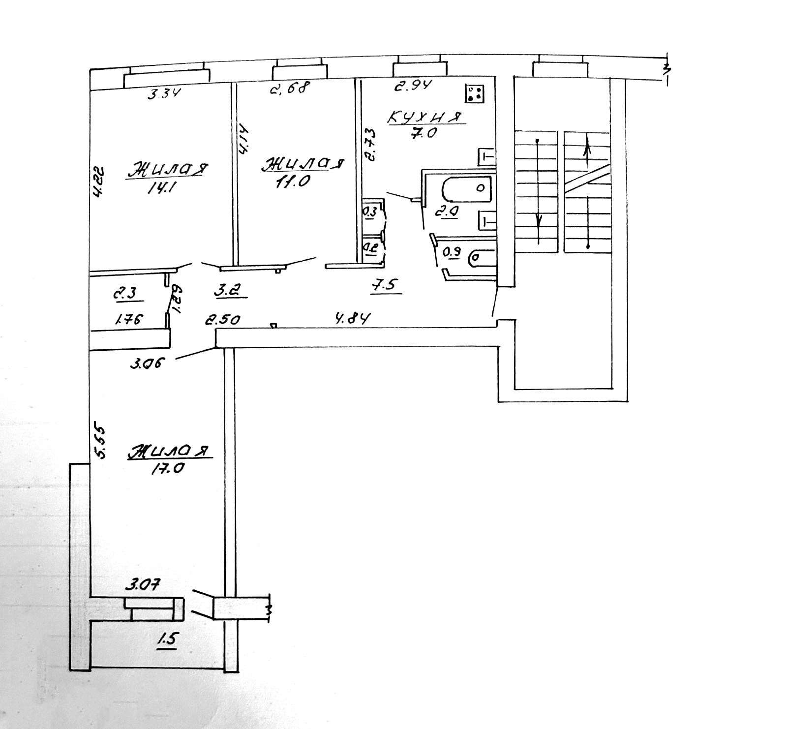
Трехкомнатная квартира удобной планировки в историческом центре Гродно. Общая площадь квартиры – 65,5 кв. м., жилая – 42 кв. м. Кухня – 7 кв. м., без газовой колонки. Высота потолков – 2,83 м. Есть лоджия. Раздельный санузел. Установлены окна ПВХ. Квартира в простом жилом состоянии, под ремонт. Материал стен позволяет выполнить перепланировку. Дом утеплен, оштукатурен и окрашен. Благоустроенная придомовая территория.

Отличное месторасположение. В шаговой доступности находятся Фарный костел, Гродненский областной драматический театр, Старый и Новый замок, Коложская церковь и многие другие уникальные достопримечательности, являющиеся визитной карточкой города и страны. Вокруг много торговых объектов, ресторанов, кафе. 5 минут пешком до автовокзала.

Отличное месторасположение позволяет сделать выбор как для собственного комфортного проживания, так и для выгодного коммерческого использования. Звоните и приходите на просмотр!

235 889.40 BYN 82 000.00$ 3 601.37 BYN/м2 1 251.91$/м2
Предложить свою цену
Заполните телефон!
Введите цену или отметьте галочкой "Консультация по кредиту"
Нажимая "Отправить" я даю согласие на обработку персональных данных
Область
Гродненская область
Район области
Гродненский
Район
Ленинский
Кол-во комнат квартиры
3
Кол-во раздельных комнат
3
Площадь(О/Ж/К)
65.50/42.00/7.00
Этаж
2/4
Год постройки
1974
Материалы дома
Кирпич
Балконы
Лоджия: 1
Номер и дата договора
573/17 от 11-11-2025
Посмотреть на карте