place
Наши филиалы: Лида

3 комнатная квартира

Продажа Гродно, Кабяка, 12 к.1

Трехкомнатная квартира в микрорайоне Вишневец.

Улица Кабяка,12/1.

10 этаж из 10.

Год постройки – 1993.

Дом из железобетонных панелей.

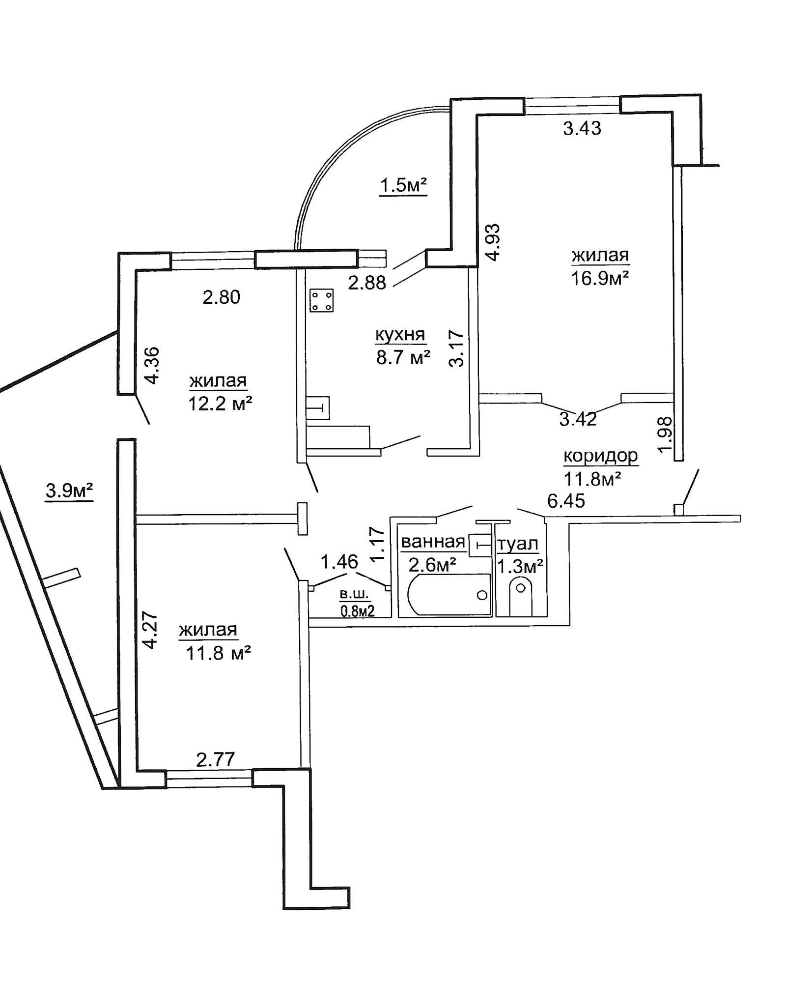
Общая площадь – 66 кв. м., жилая – 41 кв. м., кухня – 8,7 кв. м.

 

Квартира с удобной планировкой в отличном районе. Выполнен косметический ремонт. Установлены пластиковые стеклопакеты. Потолки окрашены, стены оклеены обоями, на полу линолеум и ламинат. Санузел раздельный, облицован плиткой, заменена сантехника. Есть две просторные благоустроенные лоджии – в комнате и кухне. Установлен встроенный шкаф-купе, также есть просторная кладовая.

Дом расположен в отличном месте. В шаговой доступности школы, детские сады. В непосредственной близости разнообразные магазины, пункты бытовых услуг, поликлиника. Развитая транспортная доступность во все направления города.

Хороший вариант для комфортной жизни семьи!

186 985.50 BYN 65 000.00$ 2 833.12 BYN/м2 984.85$/м2
Предложить свою цену
Заполните телефон!
Введите цену или отметьте галочкой "Консультация по кредиту"
Нажимая "Отправить" я даю согласие на обработку персональных данных
Область
Гродненская область
Район области
Гродненский
Район
Октябрьский
Микрорайон
Вишневец-2
Кол-во комнат квартиры
3
Кол-во раздельных комнат
3
Площадь(О/Ж/К)
66.00/41.00/8.70
Этаж
10/10
Год постройки
1993
Материалы дома
Панель
Балконы
Лоджия: 2
Сан. узел (кол-во)
Раздельный: 1
Номер и дата договора
569/17 от 10-11-2025
Посмотреть на карте