place
Наши филиалы: Лида

3 комнатная квартира

Продажа Гродно, Ивана Якубовского, 9А

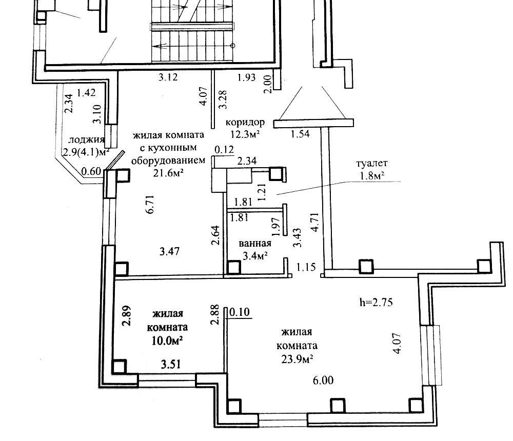
В продаже трехкомнатная квартира в современном м-не Фолюш, по ул. Якубовского, 9а. Квартира расположена на 5-ом этаже 12- этажного монолитного дома 2025 года постройки. Общая площадь 73 м.кв.(по СНБ 75,9 м.кв.), жилая 55,5 м.кв., кухня 21,6 м.кв. Высота потолков 2,75 м. Окна – ПВХ, по всей квартире стены подготовлены под покраску либо поклейку обоев. Одна остекленная лоджия. В доме установлено видеонаблюдение, домофон, 2 лифта. Во дворе имеется парковка для автомобилей с достаточным количеством парковочных мест, современная детская площадка. В шаговой доступности: школа №37, 4 гимназия, детские сады, магазины, ТЦ, аптеки, Юбилейное озеро, речка Лососянка, остановки общественного транспорта. На первом этаже жилого дома расположена детская амбулатория.

Возможна покупка в кредит, а также с привлечением «Жилищного баланса». Поможем продать вашу недвижимость для покупки этой! Более подробную информацию можно узнать по телефону.

226 971.63 BYN 78 900.00$ 3 109.19 BYN/м2 1 080.82$/м2
Предложить свою цену
Заполните телефон!
Введите цену или отметьте галочкой "Консультация по кредиту"
Нажимая "Отправить" я даю согласие на обработку персональных данных
Область
Гродненская область
Район области
Гродненский
Район
Октябрьский
Микрорайон
Фолюш
Кол-во комнат квартиры
3
Кол-во раздельных комнат
3
Площадь(О/Ж/К)
73.00/55.50/21.60
Этаж
5/12
Год постройки
2025
Материалы дома
Монолит
Балконы
Лоджия: 1
Сан. узел (кол-во)
Раздельный: 1
Номер и дата договора
579/17 от 14-11-2025
Посмотреть на карте