place
Наши филиалы: Лида

3 комнатная квартира

Продажа Гродно, Индурское, 4А

Просторная, светлая 3-комнатная квартира в хорошем районе г. Гродно, Индурское шоссе, 4А (м-н Вишневец). Квартира с отделкой и мебелью, функциональная планировка. Дом отличается удачным расположением, удобные выезды, хорошая транспортная развязка. До центра города 10 минут.

Развитая инфраструктура (магазины, школа с бассейном, детский сад, минирынок, ТЦ Тринити, Лесопарк Румлево) . Рядом с домом удобная парковка, детская площадка.

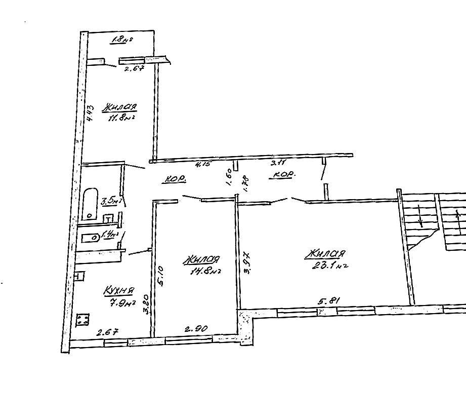
6 этаж 9-тиэтажного дома 1997 года постройки, материал стен – панель. Общая площадь 78.4 кв.м., жилая 49.7 кв.м., кухня 7.9кв.м. Окна – ПВХ. Сан. узел раздельный, облицован плиткой. Материал полов – паркет, керамогранит.

За дополнительной информацией просьба обращаться по номеру телефона.

Кроме того, здесь Вы можете организовать собственный бизнес как сдача квартиры в аренду.

Бесплатное сопровождение для покупателя!!! Работаем с кредитом, жилищным балансом. Оперативный показ и юридическое сопровождение сделки гарантируем. Поможем продать вашу недвижимость для покупки этой.

За подробной информацией просьба обращаться по телефону и пишите Viber, Telegram. Возможен торг.

186 985.50 BYN 65 000.00$ 2 385.01 BYN/м2 829.08$/м2
Предложить свою цену
Заполните телефон!
Введите цену или отметьте галочкой "Консультация по кредиту"
Нажимая "Отправить" я даю согласие на обработку персональных данных
Область
Гродненская область
Район области
Гродненский
Район
Октябрьский
Микрорайон
Вишневец-1
Кол-во комнат квартиры
3
Кол-во раздельных комнат
3
Площадь(О/Ж/К)
78.40/49.70/7.90
Этаж
6/9
Год постройки
1997
Материалы дома
Панель
Балконы
Балкон: 1
Сан. узел (кол-во)
Раздельный: 1
Номер и дата договора
410/17 от 01-09-2025
Посмотреть на карте