place
Наши филиалы: Лида

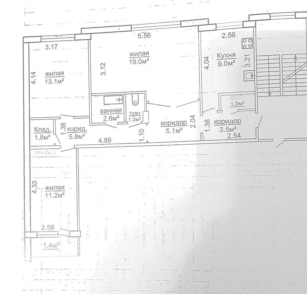
3 комнатная квартира

Продажа Гродно, Фолюш, 15 к.205

Продается просторная трехкомнатная квартира по ул. Фолюш, 15/205. Недалеко лесопарк, рядом магазины, минирынок, школа,детский сад, остановки общественного транспорта.

5 этаж 5-ти этажного панельного дома 1984 года постройки. Общая площадь 73.4 кв.м., жилая – 43.3 кв.м., кухня 9.0. Высота потолков 2,52. Окна – дерево, имеется лоджия, кладовка. Сан. узел раздельный, облицован плиткой. Квартира под отделку. Аккуратный подъезд. За дополнительной информацией просьба обращаться по номеру телефона.

Кроме того, здесь Вы можете организовать собственный бизнес как сдача квартиры в аренду.

Бесплатное сопровождение для покупателя!!! Поможем продать вашу недвижимость для покупки этой. Бесплатные консультации! Работаем с привлечением кредита, семейного капитала, жилищного баланса.

За подробной информацией просьба обращаться по телефону и пишите Viber, Telegram. Возможен торг.

145 301.15 BYN 48 500.00$ 1 979.57 BYN/м2 660.76$/м2
Предложить свою цену
Заполните телефон!
Введите цену или отметьте галочкой "Консультация по кредиту"
Нажимая "Отправить" я даю согласие на обработку персональных данных
Область
Гродненская область
Район области
Гродненский
Район
Октябрьский
Микрорайон
Фолюш
Кол-во комнат квартиры
3
Кол-во раздельных комнат
3
Площадь(О/Ж/К)
73.40/43.30/9.00
Этаж
5/5
Год постройки
1984
Материалы дома
Панель
Балконы
Лоджия: 1
Сан. узел (кол-во)
Раздельный: 1
Номер и дата договора
302/17 от 29-07-2025
Посмотреть на карте