place
Наши филиалы: Лида

3 комнатная квартира

Продажа Гродно, Брикеля, 3

Просторная трехкомнатная квартира в г. Гродно, ул. Брикеля , 3 (м-н Девятовка). Квартира продается с мебелью и бытовой техникой. Дом отличается удачным расположением, удобные выезды, хорошая транспортная развязка.

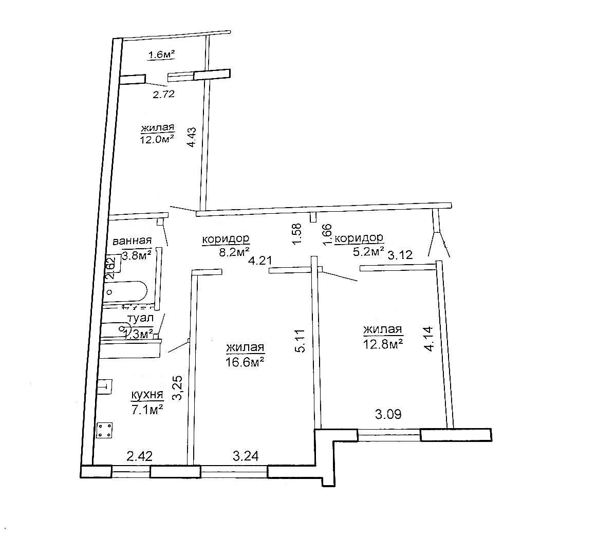
Развитая инфраструктура (магазины, школа, детский сад, ТЦ Олд Сити) . Центр города в шаговой доступности. Рядом с домом парковка, детская площадка. 1 этаж 9-тиэтажного дома 1988 года постройки, материал стен – панель. Общая площадь 67.0 кв.м., жилая 41.4 кв.м., кухня 7.1 кв.м. Окна –ПВХ . Сан. узел раздельный, облицован плиткой. Материал полов – ламинат, плитка.

Кроме того, здесь Вы можете организовать собственный бизнес как сдача квартиры в аренду.

Бесплатное сопровождение для покупателя!!! Работаем с кредитом, жилищным балансом. Оперативный показ и юридическое сопровождение сделки гарантируем. Поможем продать вашу недвижимость для покупки этой.

За подробной информацией просьба обращаться по телефону и пишите Viber, Telegram. Возможен торг.

213 671.00 BYN 73 000.00$ 3 189.11 BYN/м2 1 089.55$/м2
Предложить свою цену
Заполните телефон!
Введите цену или отметьте галочкой "Консультация по кредиту"
Нажимая "Отправить" я даю согласие на обработку персональных данных
Область
Гродненская область
Район области
Гродненский
Район
Ленинский
Кол-во комнат квартиры
3
Кол-во раздельных комнат
3
Площадь(О/Ж/К)
67.00/41.40/7.10
Этаж
1/9
Год постройки
1988
Материалы дома
Панель
Балконы
Лоджия: 1
Сан. узел (кол-во)
Раздельный: 1
Номер и дата договора
532/17 от 20-10-2025
Посмотреть на карте