place
Наши филиалы: Лида

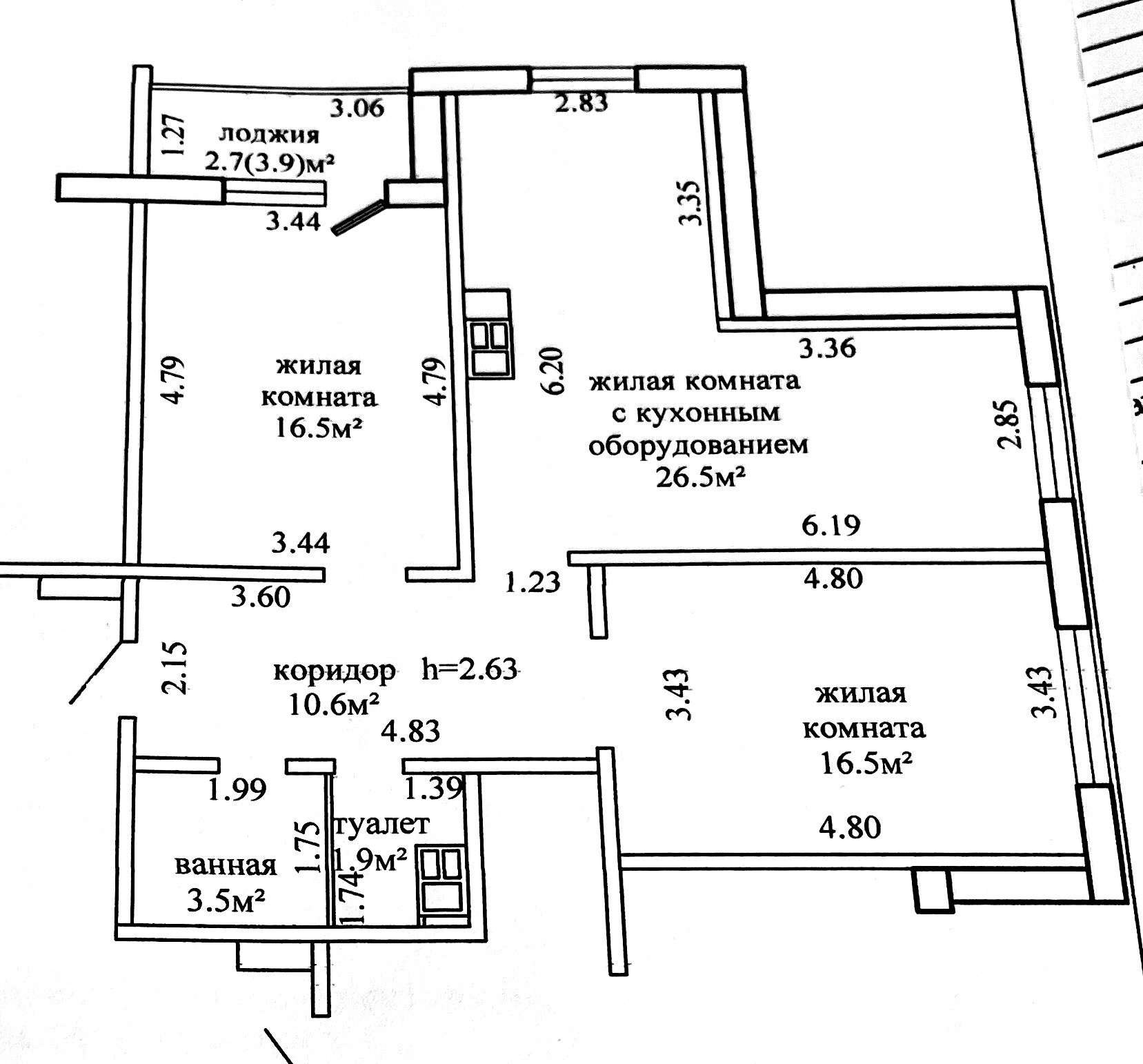
3 комнатная квартира

Продажа Гродно, Александра Курловича, 5

В продаже уютная 3-х комнатная квартира с ремонтом в новостройке, по пр-кт Александра Курловича, 5 в г. Гродно (м-н Грандичи). Квартира находится на 2-ом этаже панельного дома 2025 года постройки. Отличный спальный район с развитой инфраструктурой. В шаговой близости все условия комфортной жизни: ясли - сад № 113, из окон квартиры видна школа № 42, в шаговой близости амбулатория, продуктовые магазины, кофейня, остановки общественного транспорта, и т.д.

Параметры квартиры: площадь – общая (по СНБ) 78.2 кв.м., жилая – 59.5 кв.м., кухня – гостиная -26.5 кв. м. Квартира со свежим современным ремонтом. Готова к заселению! Продаётся практически со всей мебелью и техникой. В прихожей расположен вместительный шкаф. Металлическая входная дверь. Материал полов – ламинат, плитка (прихожая, кухня).Санузел облицован плиткой.. Качественный кухонный гарнитур со встроенной бытовой техникой. Просторная застеклённая лоджия с выходом из спальной комнаты. По периметру дома установлена система видеонаблюдения. Большая детская игровая площадка. Дом обслуживает эффективное товарищество собственников: к вашим услугам свой председатель, сантехник, электрик, бухгалтер, которые по первому звонку помогут решить вопросы. Коллектив сознательных жильцов. За дополнительной информацией просьба обращаться по телефону. Возможен торг. Поможем продать Вашу недвижимость для приобретения этой.

265 474.97 BYN 88 990.00$ 3 394.82 BYN/м2 1 137.98$/м2
Предложить свою цену
Заполните телефон!
Введите цену или отметьте галочкой "Консультация по кредиту"
Нажимая "Отправить" я даю согласие на обработку персональных данных
Область
Гродненская область
Район области
Гродненский
Район
Ленинский
Микрорайон
Грандичи-4
Кол-во комнат квартиры
3
Кол-во раздельных комнат
3
Площадь(О/Ж/К)
78.20/59.50/-
Этаж
2/18
Год постройки
2025
Материалы дома
Панель
Балконы
Лоджия: 1
Сан. узел (кол-во)
Раздельный: 1
Номер и дата договора
277/17 от 21-07-2025
Посмотреть на карте