place
Наши филиалы: Лида

3 комнаты

Продажа Гродно, Пестрака, 34

Продается 7/10 доли (3 комнаты) в 4-комнатной квартире , расположенная на ул. Пестрака 34. Панельный дом 1981 года, идеальный 1 этаж .

Прекрасное местоположение дома. Уютный двор, аккуратный чистый подъезд, спокойные соседи сделают ваше проживание комфортным.

Развитая инфраструктура дома (магазины, евроопт, ТЦ « Тринити», школы, гимназии. детские сады ,поликлиника ), транспортная развязка существенно сэкономят время прибывания в пути .

Рядом с домом удобная парковка , есть хорошая детская площадка .

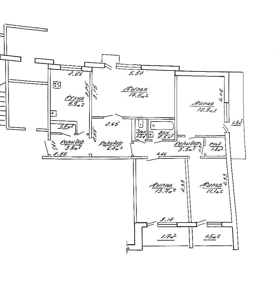
Параметры квартиры: общая площадь- 86,6 кв м жилая площадь- 55,2 кв м

7/10 доли- 37,7.кв м , кухня-8,9 кв м.

Материал полов: плитка и ДВП . Окна ПВХ.

Санузел раздельный, в отличном состоянии. В отличном состоянии кухня.

Имеются 2 застекленных лоджии и балкон , есть подвал.

Доля продается частично продается с мебелью.

Идеально подойдет всем, кто ценит хорошее расположение дома и удобную планировку. Есть возможность сделать ремонт в комнатах под себя.

Более подробно- по телефону.

Звоните!

А лучше- приезжайте!

Оперативный показ и юридическое сопровождение сделки гарантируем.

Работаем с привлечением кредитных средств.

134 815.50 BYN 45 000.00$ 1 556.76 BYN/м2 519.63$/м2
Предложить свою цену
Заполните телефон!
Введите цену или отметьте галочкой "Консультация по кредиту"
Нажимая "Отправить" я даю согласие на обработку персональных данных
Область
Гродненская область
Район области
Гродненский
Район
Октябрьский
Микрорайон
Принеманский
Кол-во продаваемых комнат
3
Кол-во комнат квартиры
4
Площадь(О/Ж/К)
86.60/55.20/8.90
Этаж
1/5
Год постройки
1981
Материалы дома
Панель
Балконы
Лоджия: 2
Сан. узел (кол-во)
Раздельный: 1
Номер и дата договора
406/17 от 01-09-2025
Посмотреть на карте