place
Наши филиалы: Лида

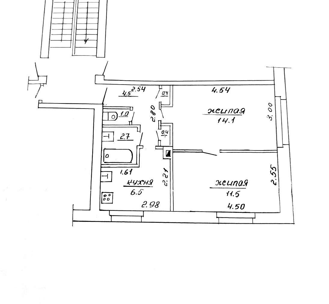
2 комнатная квартира

Продажа Скидель, Клубная, 18

Возможен обмен на дом в г. Скидель с вашей доплатой!

В продаже просторная 2-комнатная квартира в г. Скидель по ул. Клубная, д. 18.

Дом кирпичный, 1966 года постройки. Квартира расположена на 2 этаже 2-этажного дома.

Общая площадь 41.1 м.кв., жилая 25.6 м.кв, кухня 6.5 м.кв. Высота потолка 2.5 м. С/у совмещенный.

Квартира с новым, качественным ремонтом. Заезжай и живи!!!

Аккуратный и чистый подъезд, рядом с домом есть парковка для автомобилей. За квартирой закреплен участок земли. Имеется подвал, сарай.

Отличное расположение дома, рядом есть все необходимое для комфортного проживания. Магазины, ясли- сад, банк, школа....

Звоните! Ответим на все интересующие Вас вопросы.

Напишите нам в удобный для Вас мессенджер: Viber | Telegram | WhatsApp

Поможем выгодно продать Вашу недвижимости для покупки этой!

Юридическое сопровождение сделки гарантируем! Работаем с привлечением кредита, семейного капитала, "Жилищного баланса".

62 257.55 BYN 21 500.00$ 1 514.77 BYN/м2 523.11$/м2
Предложить свою цену
Заполните телефон!
Введите цену или отметьте галочкой "Консультация по кредиту"
Нажимая "Отправить" я даю согласие на обработку персональных данных
Область
Гродненская область
Район области
Гродненский
Кол-во комнат квартиры
2
Кол-во раздельных комнат
2
Площадь(О/Ж/К)
41.10/25.60/6.50
Этаж
2/2
Год постройки
1966
Материалы дома
Кирпич
Балконы
Нет
Сан. узел (кол-во)
Совмещенный: 1
Номер и дата договора
97/17 от 19-05-2025
Посмотреть на карте