place
Наши филиалы: Лида

2 комнатная квартира

Продажа Щучин, Островского, 5

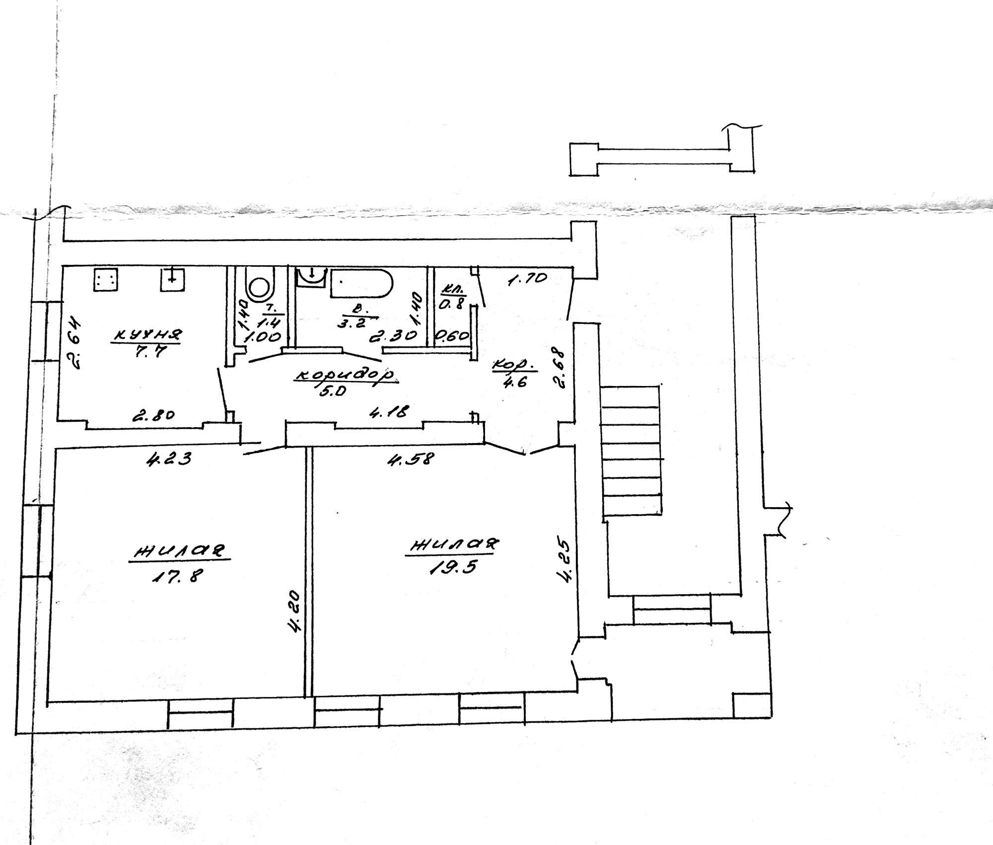
Продается 2-комнатная квартира в г. Щучин, ул. Островского, д.5, на 2 этаже 3 этажного кирпичного дома 1953 года постройки, общая площадь 60,0 м.кв., жилая площадь 37,3 м.кв., кухня 7,7 м.кв., санузел раздельный. В 10 минутах ходьбы от центра города в (60 км от Гродно). Квартира очень теплая, просторная, требующая к себе внимания. Окна деревянные, стены оклеены обоями, на полу деревянная доска. В пешей доступности магазины, костёл, церковь, детские сады, озеро, стадион, завод "Автопровод", автовокзал, достопримечательность Щучина – дворец Друцких-Любецких – ныне дворец творчества детей и молодежи.

Окажем помощь в продаже Вашей недвижимости для покупки этой! Бесплатные консультации, работаем с привлечением кредита, семейного капитала, жилищного баланса.

Оперативный показ и юридическое сопровождение сделки гарантируем.

За подробной информацией просьба обращаться по телефону и пишите в Viber, Telegram.

53 697.60 BYN 18 000.00$ 894.96 BYN/м2 300.00$/м2
Предложить свою цену
Заполните телефон!
Введите цену или отметьте галочкой "Консультация по кредиту"
Нажимая "Отправить" я даю согласие на обработку персональных данных
Область
Гродненская область
Район области
Щучинский
Кол-во комнат квартиры
2
Кол-во раздельных комнат
2
Площадь(О/Ж/К)
60.00/37.30/7.70
Этаж
2/3
Год постройки
1953
Материалы дома
Кирпич
Балконы
Балкон: 1
Сан. узел (кол-во)
Раздельный: 1
Номер и дата договора
41/6 от 30-01-2025
Посмотреть на карте