place
Наши филиалы: Лида

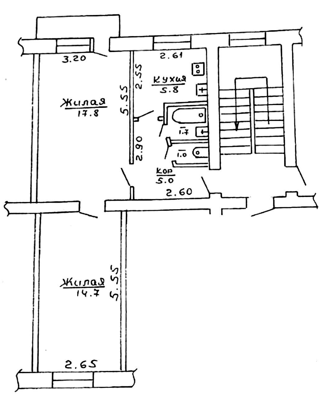
2 комнатная квартира

Продажа Щучин, Островского, 14

Предлагаем Вашему вниманию двухкомнатную квартиру с просторными комнатами на разные стороны света (запад/восток) в г. Щучин, по ул. Островского, 14, в доме 1969 г.п. из блоков, расположенную на четвертом этаже 5-этажного дома. Чистый аккуратный подъезд. Дом после капитального ремонта.

Общая площадь - 46 м2, жилая - 32,5 м2, кухня - 5,8 м2. В квартире металлическая входная дверь, окна ПВХ, стены оклеены обоями, полы -ДСП, газовая колонка.

Идеальное расположение дома! Центр города, с балкона открывается прекрасный вид на озеро, где обустроена зона отдыха с пляжем, стадион, за домом расположен детский сад, рядом школа, магазины, аптеки, автовокзал, почта, дворец Друцких-Любецких - ныне дворец творчества детей и молодежи, пляж, красивая зона отдыха у озера.

Отличное место для жизни!

Окажем помощь в продаже Вашей недвижимости для покупки этой! Юридическое сопровождение сделки гарантируем. Работаем с привлечением кредита, семейного капитала, жилищного баланса. Звоните будем рады выслушать Ваши предложения!

56 922.10 BYN 19 000.00$ 1 237.43 BYN/м2 413.04$/м2
Предложить свою цену
Заполните телефон!
Введите цену или отметьте галочкой "Консультация по кредиту"
Нажимая "Отправить" я даю согласие на обработку персональных данных
Область
Гродненская область
Район области
Щучинский
Кол-во комнат квартиры
2
Кол-во раздельных комнат
2
Площадь(О/Ж/К)
46.00/32.50/5.80
Этаж
4/5
Год постройки
1969
Материалы дома
Блок
Балконы
Балкон: 1
Сан. узел (кол-во)
Раздельный: 1
Номер и дата договора
375/17 от 23-08-2025
Посмотреть на карте