place
Наши филиалы: Лида

2 комнатная квартира

Продажа Лида, Свердлова, 175

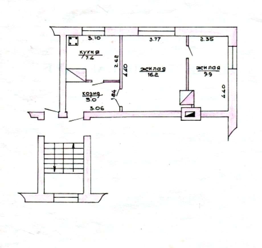
Продаётся 2-к кв. в двухэтажном кирпичном доме по ул. Свердлова. В доме заменена скатная кровля и отремонтирован подъезд. В квартиру подведено водоснабжение, есть возможность обустройства канализации и санузла. В квартире печное отопление соответственно есть хоз. постройки.

35 242.80 BYN 12 000.00$ 915.40 BYN/м2 311.69$/м2
Предложить свою цену
Заполните телефон!
Введите цену или отметьте галочкой "Консультация по кредиту"
Нажимая "Отправить" я даю согласие на обработку персональных данных
Область
Гродненская область
Район области
Лидский
Кол-во комнат квартиры
2
Кол-во раздельных комнат
2
Площадь(О/Ж/К)
38.50/26.10/7.40
Этаж
2/2
Год постройки
1966
Материалы дома
Кирпич
Ремонт
Косметический
Балконы
Нет
Сан. узел (кол-во)
На улице: 1
Номер и дата договора
223/20 от 11-12-2025
Посмотреть на карте