place
Наши филиалы: Лида

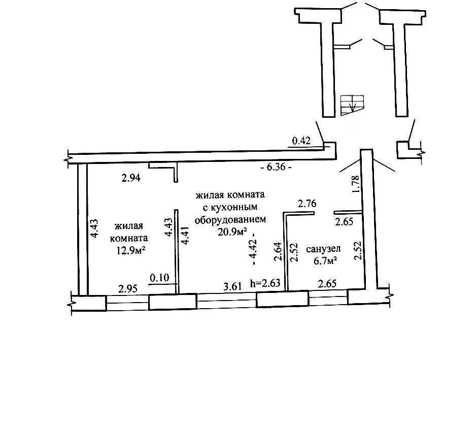
2 комнатная квартира

Продажа Коробчицы, Молодёжная, 10

В продаже 2-комнатная квартира с дизайнерским ремонтом (никто не проживал) по улице Молодежная, 10 в д.Коробчицы (2 км от Гродно), 1/2- этажного кирпичного дома 1967 г.п. Сочетает в себе уют, современный комфорт и душевную гармонию.

Продается со всей новой мебелью и бытовой техникой ( на гарантии)!

Общая площадь 40.5 кв.м, жиля 33.8 кв.м, кухня совмещена с залом 20.9 кв.м, с/у совмещенный 7 кв.м. Выполнено переустройство (замена электрического и санитарно-технического оборудования), перепланировка узаконена!

Духовой шкаф, электроплита, вытяжка фирмы Maunfeld. Вся корпусная мебель и кухонный гарнитур выполнены из качественных материалов. Шторы и тюли выполнены на заказ из дорогих современных материалов. На полах виниловое покрытие, в с/у керамическая плитка (подогрев пола), на умывальнике установлена компакт плита (долговечное покрытие), зеркало с подсветкой, сделано зонирование, изюминкой ванной комнаты является окно.

Есть возможность взять участок земли в пользование!

Приглашаем на показ!

Возможна продажа в кредит!

Продадим Вашу недвижимость для покупки этой.

169 744.08 BYN 56 900.00$ 4 191.22 BYN/м2 1 404.94$/м2
Предложить свою цену
Заполните телефон!
Введите цену или отметьте галочкой "Консультация по кредиту"
Нажимая "Отправить" я даю согласие на обработку персональных данных
Область
Гродненская область
Район области
Гродненский
Кол-во комнат квартиры
2
Кол-во раздельных комнат
2
Площадь(О/Ж/К)
40.50/33.80/-
Этаж
1/2
Год постройки
1967
Материалы дома
Кирпич
Балконы
Нет
Сан. узел (кол-во)
Совмещенный: 1
Номер и дата договора
280/17 от 22-07-2025
Посмотреть на карте