place
Наши филиалы: Лида

2 комнатная квартира

Продажа Гродно, Южная, 17

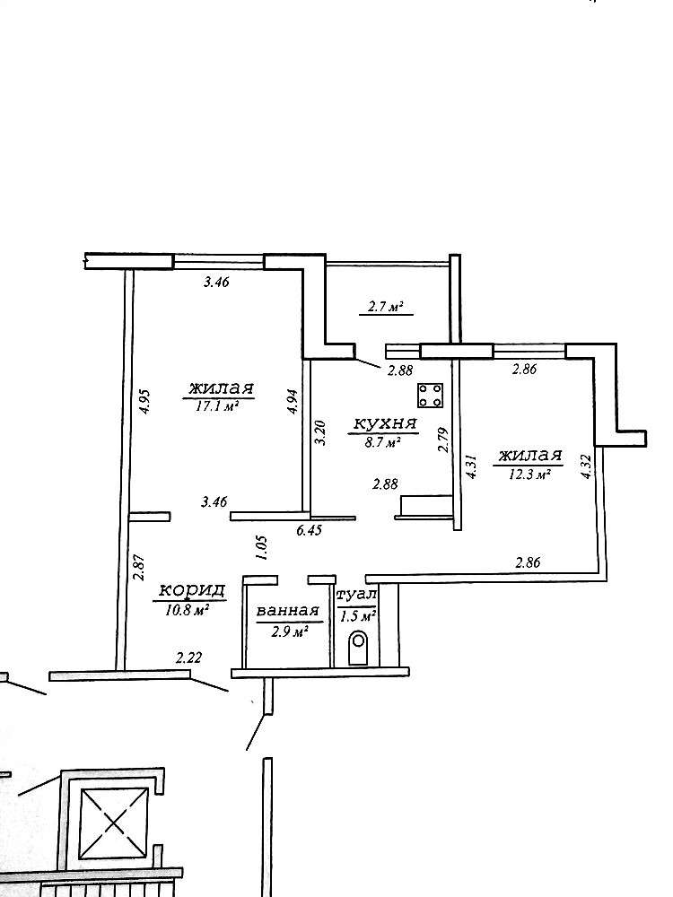
В продаже двухкомнатная квартира в м-не Вишневец, по ул. Южная, 17. Квартира расположена на 4 этаже 9-этажного панельного дома 2009 года постройки. Общая площадь 53,3 м.кв.(по СНБ 56,0 м.кв.), жилая 29,4 м.кв., кухня 8,7 м.кв. Высота потолков 2,64 м. Квартира с ремонтом. Окна – ПВХ; материал полов – ламинат. Санузел раздельный, облицован плиткой. Имеется утепленная лоджия в кухне. Входная дверь металлическая. Будущим собственникам остается вся мебель.

Дом расположен в районе с развитой инфраструктурой. В шаговой доступности: школы, детские сады, магазины, ТЦ Тринити и ряд более мелких магазинов, поликлиника, банно-оздоровительный комплекс, остановки общественного транспорта. В доме установлено видеонаблюдение. Во дворе имеется парковка для автомобилей с достаточным количеством парковочных мест, современная детская площадка.

Квартира полностью готова к продаже – заезжай и живи!

Возможна покупка в кредит, а также с привлечением «Жилищного баланса». Поможем продать вашу недвижимость для покупки этой! Более подробную информацию можно узнать по телефону.

189 862.20 BYN 66 000.00$ 3 562.13 BYN/м2 1 238.27$/м2
Предложить свою цену
Заполните телефон!
Введите цену или отметьте галочкой "Консультация по кредиту"
Нажимая "Отправить" я даю согласие на обработку персональных данных
Область
Гродненская область
Район области
Гродненский
Район
Октябрьский
Микрорайон
Вишневец-5
Кол-во комнат квартиры
2
Кол-во раздельных комнат
2
Площадь(О/Ж/К)
53.30/29.40/8.70
Этаж
4/9
Год постройки
2009
Материалы дома
Панель
Балконы
Лоджия: 1
Сан. узел (кол-во)
Раздельный: 1
Номер и дата договора
615/17 от 03-12-2025
Посмотреть на карте