place
Наши филиалы: Лида

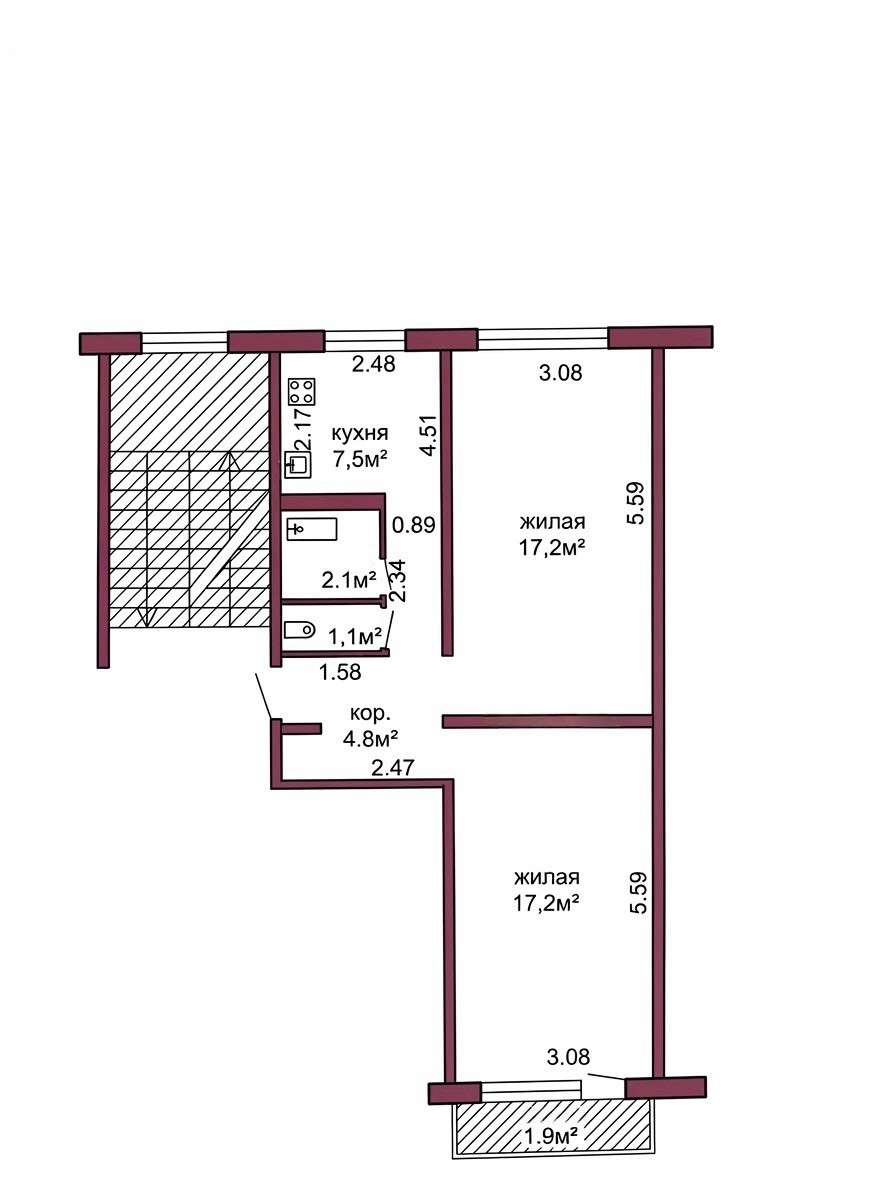
2 комнатная квартира

Продажа Гродно, Врублевского, 58

Просторная двухкомнатная квартира в г. Гродно, ул. Врублевского, 58 (м-н Форты). Дом отличается удачным расположением, удобные выезды, хорошая транспортная развязка.

Развитая инфраструктура (магазины, школа, детский сад, недалеко ТЦ Олд Сити, поликлиника, мини-рынок). Рядом с домом парковка, детская площадка. 2 этаж 5-тиэтажного дома 1972 года постройки, материал стен – панель. Общая площадь 50 кв.м., жилая 34.4 кв.м., кухня 7.5 кв.м. Окна –ПВХ . Сан. узел раздельный, облицован плиткой. Материал полов – ламинат, плитка.

Кроме того, здесь Вы можете организовать собственный бизнес как сдача квартиры в аренду.

Бесплатное сопровождение для покупателя!!! Работаем с кредитом, жилищным балансом. Оперативный показ и юридическое сопровождение сделки гарантируем. Поможем продать вашу недвижимость для покупки этой.

За подробной информацией просьба обращаться по телефону и пишите Viber, Telegram. Возможен торг.

169 968.00 BYN 60 000.00$ 3 399.36 BYN/м2 1 200.00$/м2
Предложить свою цену
Заполните телефон!
Введите цену или отметьте галочкой "Консультация по кредиту"
Нажимая "Отправить" я даю согласие на обработку персональных данных
Область
Гродненская область
Район области
Гродненский
Район
Ленинский
Микрорайон
Форты-1
Кол-во комнат квартиры
2
Кол-во раздельных комнат
2
Площадь(О/Ж/К)
50.00/34.40/7.50
Этаж
2/5
Год постройки
1972
Материалы дома
Панель
Сан. узел (кол-во)
Раздельный: 1
Номер и дата договора
261/17 от 30-03-2026
Посмотреть на карте