place
Наши филиалы: Лида

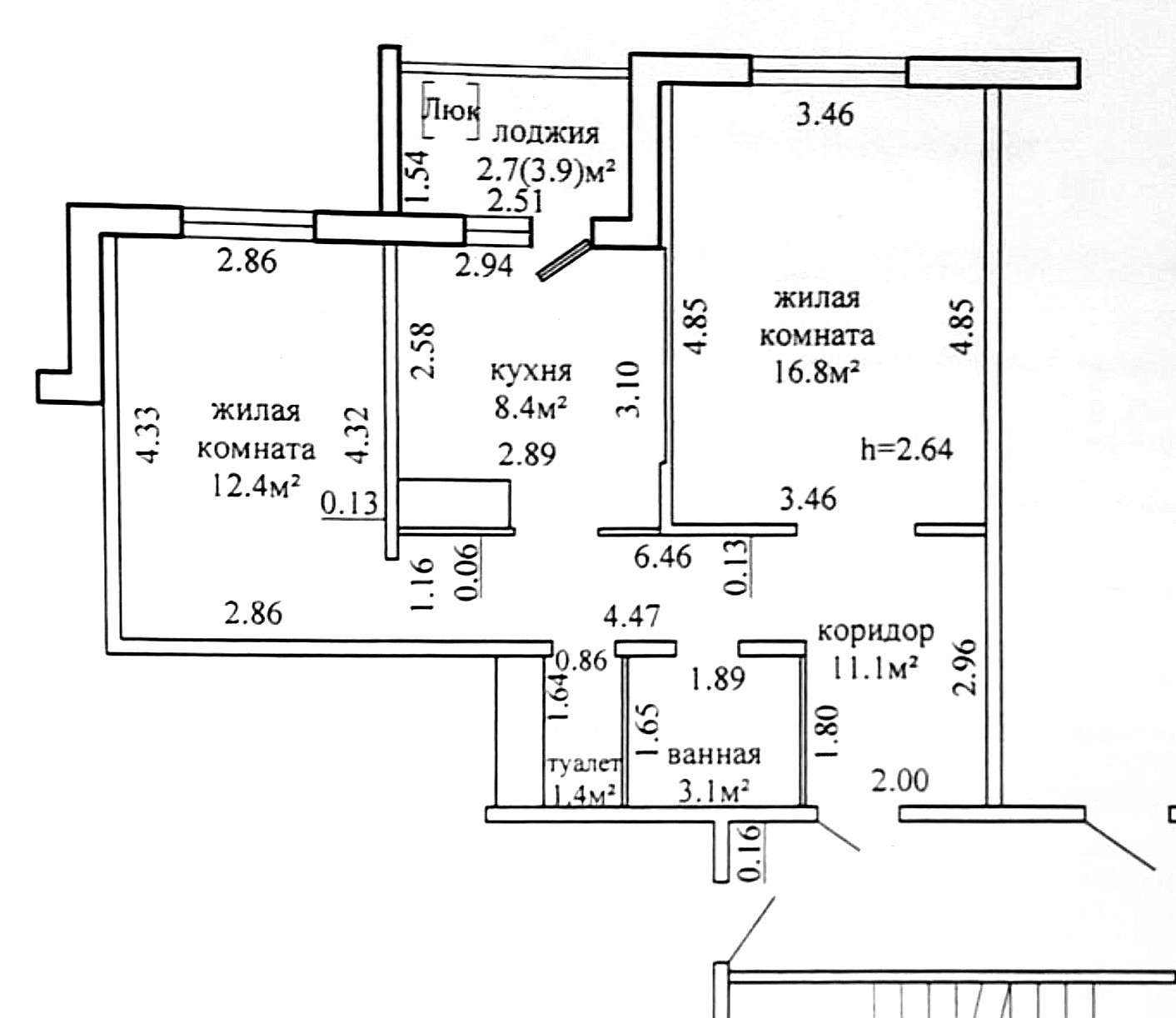
2 комнатная квартира

Продажа Гродно, Виктора Глухова, 10

Продается стильная 2-х комнатная квартира с дизайнерским ремонтом ул. Виктора Глухова дом 10, 7 этаж/ 10 этажного панельного жилого дома. Год постройки 2021. Площадь общая 55.9, жилая 29,2 м2 , кухня 8.4 м2.

Ремонт выполнен в современном стиле.

Входная металлическая дверь премиум класса.

Электрика разведена по евронормам, точечное освещение.

Кухня со всей техникой фирмы Maunfeld !Посудомоечная машина шириной 60 см. Стиральная машина фирмы Bosch.

В ванной комнате установлен душевой трап, выполнена система контроля перепадов давления.

Один грузоподъемный лифт. Есть подвал со своей ячейкой. За домом просторная авто парковка. Рядом с домом остановки общественного транспорта, школа с бассейном, детский сад № 111, магазины.

Поможем продать вашу недвижимость для покупки этой!

За подробной информацией просьба обращаться по телефону и пишите Viber, Telegram. Возможен торг!

214 601.82 BYN 74 600.00$ 3 839.04 BYN/м2 1 334.53$/м2
Предложить свою цену
Заполните телефон!
Введите цену или отметьте галочкой "Консультация по кредиту"
Нажимая "Отправить" я даю согласие на обработку персональных данных
Область
Гродненская область
Район области
Гродненский
Район
Ленинский
Микрорайон
Грандичи-3
Кол-во комнат квартиры
2
Кол-во раздельных комнат
2
Площадь(О/Ж/К)
55.90/29.20/8.40
Этаж
7/10
Год постройки
2021
Материалы дома
Панель
Балконы
Лоджия: 1
Сан. узел (кол-во)
Раздельный: 1
Номер и дата договора
85/6 от 17-02-2025
Посмотреть на карте