place
Наши филиалы: Лида

2 комнатная квартира

Продажа Гродно, Суворова, 306

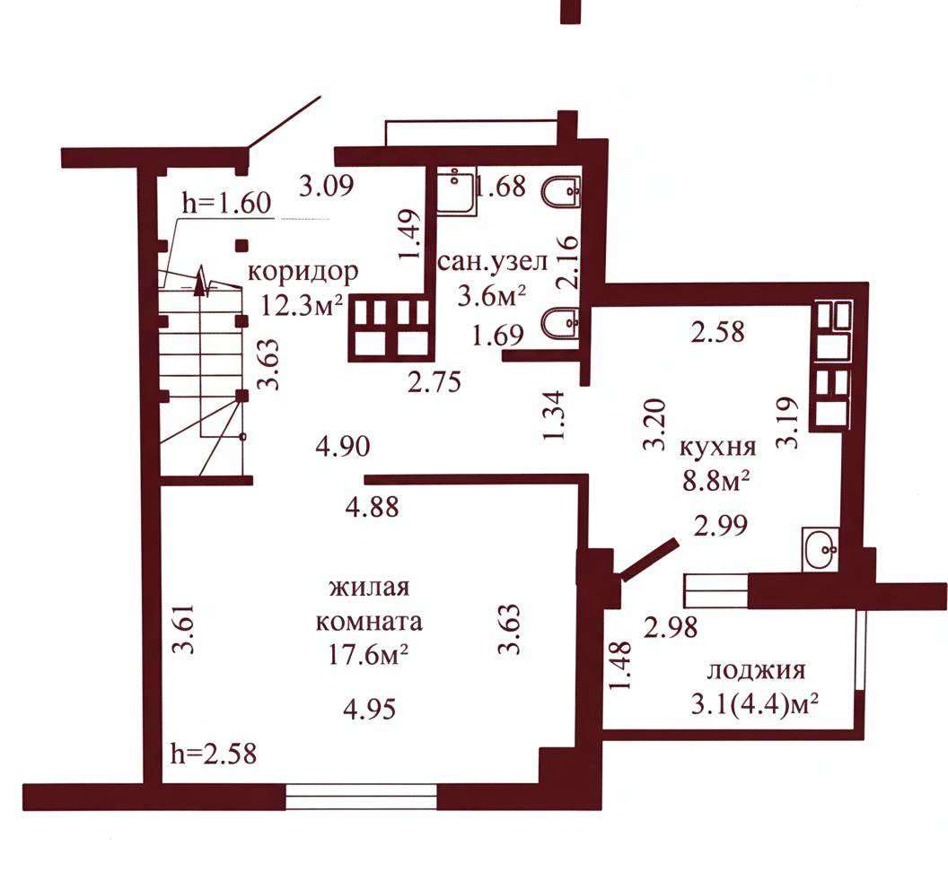
Представляем вашему вниманию эксклюзивную двухуровневую двухкомнатную квартиру, утопающую в зелени самого живописного района Гродно, по адресу улица Суворова, 306. Расположенная на 13-14 этажах, эта квартира с общей площадью по СНБ 80 м² и жилой площадью 40 м² предлагает уникальное пространство для жизни.

На первом уровне вас встретит просторная гостиная площадью 17,6 м² и уютная кухня 8,8 м², ведущая на широкую видовую лоджию, откуда открывается завораживающий вид. Совмещенный санузел 3,6 м² и возможность организации зон для хранения у входа дополняют функциональность этого этажа.

Второй уровень – это место приватности и комфорта. Здесь расположился просторный санузел 5,1 м² и жилая комната площадью 21,6 м².

Окна, выходящие на запад, подарят вам незабываемые моменты, наполненные великолепием заходящего солнца.

В подарок при покупке квартиры вы получите эксклюзивный дизайн-проект, который поможет претворить ваши мечты в реальность!

Новый жилой микрорайон. Дружные молодые соседи. В шаговой доступности разнообразные магазины и объекты сервиса. Много мест для прогулок, велодорожки, рядом Юбилейное озеро.

Бесплатное сопровождение для покупателя!!!

Работаем с кредитом, жилищным балансом.

Оперативный показ и юридическое сопровождение сделки гарантируем. Поможем продать вашу недвижимость для покупки этой.

За подробной информацией просьба обращаться по телефону и пишите в мессенджеры.

256 824.00 BYN 90 000.00$ 3 210.30 BYN/м2 1 125.00$/м2
Предложить свою цену
Заполните телефон!
Введите цену или отметьте галочкой "Консультация по кредиту"
Нажимая "Отправить" я даю согласие на обработку персональных данных
Область
Гродненская область
Район области
Гродненский
Район
Октябрьский
Микрорайон
Колбасино
Кол-во комнат квартиры
2
Кол-во раздельных комнат
2
Площадь(О/Ж/К)
80.00/40.00/-
Этаж
13/14
Год постройки
2019
Материалы дома
Монолит
Балконы
Лоджия: 1
Сан. узел (кол-во)
Совмещенный: 1
Номер и дата договора
155/17 от 25-02-2026
Посмотреть на карте