place
Наши филиалы: Лида

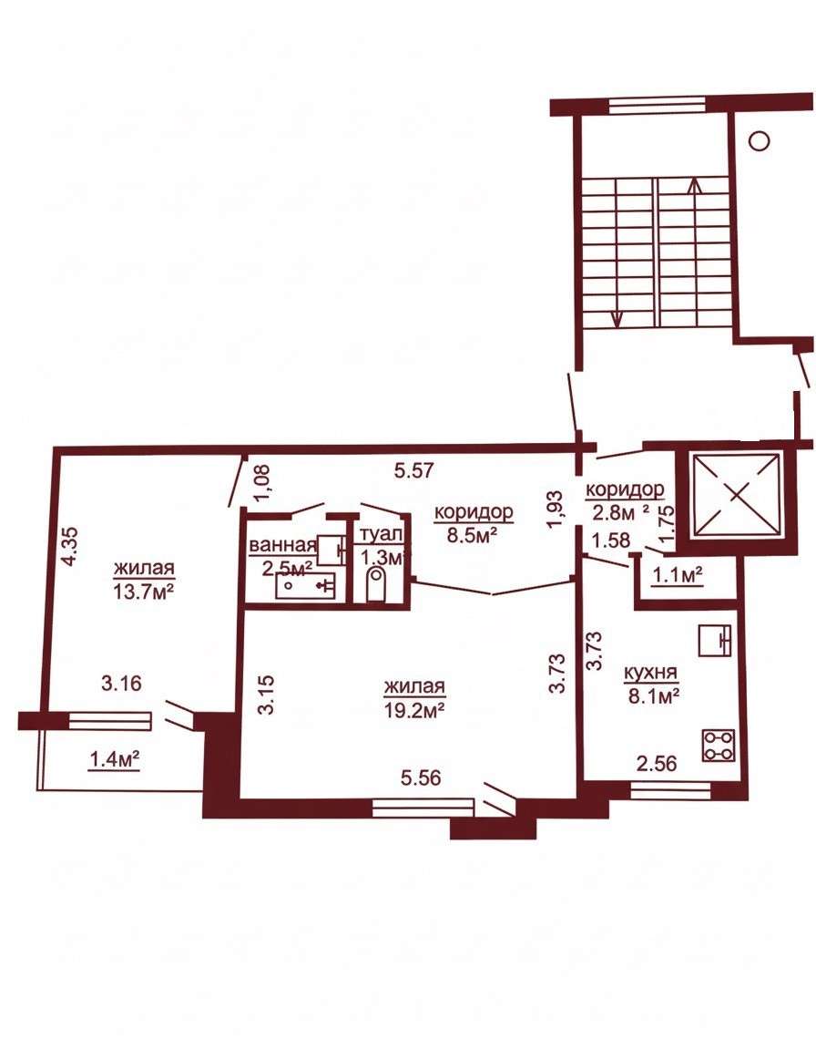
2 комнатная квартира

Продажа Гродно, Строителей, 11

Продается 2-комнатная квартира, в г. Гродно, пр. Строителей д.11. Квартира готова к ремонту. Дом отличается удачным расположением, удобные выезды, хорошая транспортная развязка. Развитая инфраструктура (магазины, минирынок, школа, детский сад, лесопарк). Рядом с домом парковка, детская площадка.

6 этаж 9-тиэтажного дома 1977 года постройки, материал стен – панель. Общая площадь 58,6 кв.м., жилая 32.9 кв.м., кухня 8,1 кв.м. Сан. узел раздельный.

За дополнительной информацией просьба обращаться по номеру телефона.

Работаем с привлечением кредита, "Жилищным балансом". Поможем продать вашу недвижимость для покупки этой.

За подробной информацией просьба обращаться по телефону и пишите Viber, Telegram. Возможен торг.

156 948.00 BYN 55 000.00$ 2 678.30 BYN/м2 938.57$/м2
Предложить свою цену
Заполните телефон!
Введите цену или отметьте галочкой "Консультация по кредиту"
Нажимая "Отправить" я даю согласие на обработку персональных данных
Область
Гродненская область
Район области
Гродненский
Район
Ленинский
Микрорайон
Переселка-3
Кол-во комнат квартиры
2
Кол-во раздельных комнат
2
Площадь(О/Ж/К)
58.60/32.90/8.10
Этаж
6/9
Год постройки
1977
Материалы дома
Панель
Сан. узел (кол-во)
Раздельный: 1
Номер и дата договора
631/17 от 12-12-2025
Посмотреть на карте