place
Наши филиалы: Лида

2 комнатная квартира

Продажа Гродно, Калючинская, 8

Продается 2-комнатная квартира в самом центре города , на ул.Калючинская 8.

Исторический дом 1930 года,кирпич,1этаж из 2. На доме табличка «Гісторыка-культурная каштоўнасць .Першая палова 20 стагоддзя»

Прекрасное местоположение дома, тихий большой двор с видом на Фарный костел.Рядом все главные достопримечательности города, авто и ж/д вокзалы, кафе , рестораны, магазины.

Преимущества квартиры:

 

-высокие потолки 3.40 м

-хороший жилой ремонт

-изолированные комнаты

-возможность сделать студию

-возможность вывести в коммерческую недвижимость

-толстые кирпичные стены

-широкие подоконники

-отсутствие газовой колонки

-есть бойлер

-железобетонные перекрытия

-окна ПВХ выходят во двор

Кухня оснащена современной техникой.Есть место для стиральной машины и душевой кабины.Пространство квартиры распределено практично и удобно.

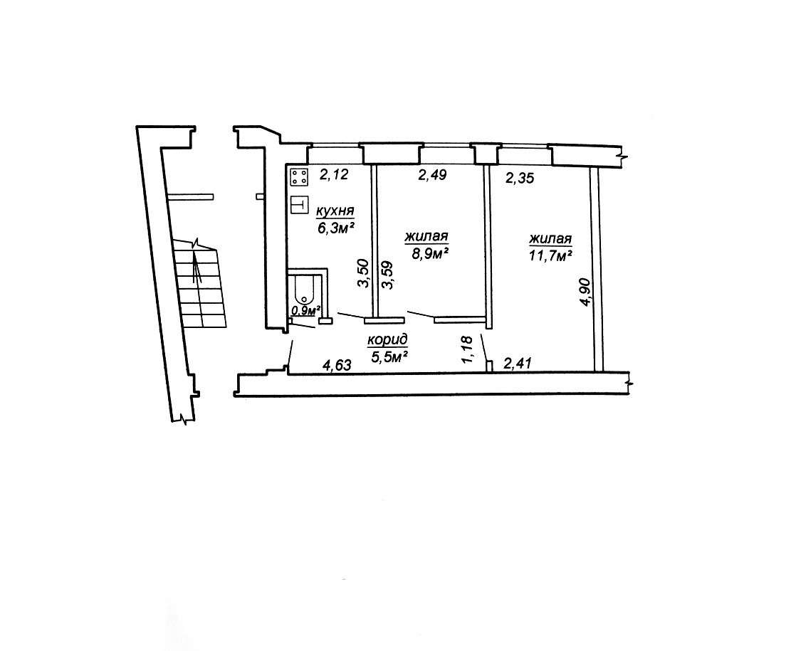
Параметры квартиры: общая площадь 33.3 кв м, жилая 20.6 кВ м, кухня 6.3 кв м.

Идеально подойдет всем, кто хочет жить в центре города или иметь свой бизнес в центре города!Отличный вариант для сдачи в аренду!

Оперативный показ!

Юридическое сопровождение сделки!

Звоните и приезжайте!

199 752.00 BYN 70 000.00$ 5 998.55 BYN/м2 2 102.10$/м2
Предложить свою цену
Заполните телефон!
Введите цену или отметьте галочкой "Консультация по кредиту"
Нажимая "Отправить" я даю согласие на обработку персональных данных
Область
Гродненская область
Район области
Гродненский
Район
Ленинский
Кол-во комнат квартиры
2
Кол-во раздельных комнат
2
Площадь(О/Ж/К)
33.30/20.60/6.30
Этаж
1/2
Год постройки
1930
Материалы дома
Кирпич
Номер и дата договора
08/17 от 05-01-2026
Посмотреть на карте