place
Наши филиалы: Лида

2 комнатная квартира

Продажа Гродно, Фолюш, 15 к.215

Продается уютная светлая 2-комнатная квартира окна на юг, с аккуратным свежим ремонтом, со всей мебелью и бытовой техникой. Стиральная машина, холодильник.

В экологически чистом районе города,

ул. Фолюш, д. 15/215.

Идеальный высокий 4-й этаж 7-ти этажного дома

Дом 2002 года панельный

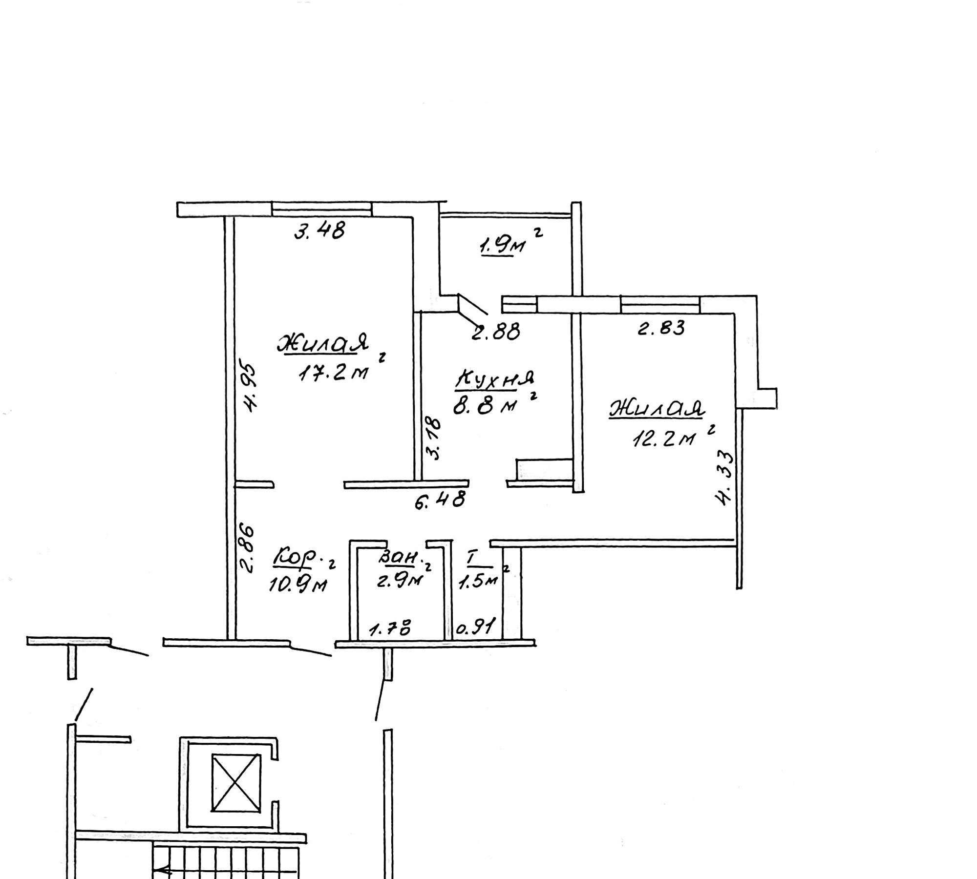
55,4/29,4/8,8 м2

Лифт, Домофон, Подвал.

Все окна новые стеклопакеты с приятным видом из всех окон на южную сторону. Уютная лоджия 3,9 м2 отделана деревом. Большая кухня 8,8 м2. Новый функциональный кухонный гарнитур.

- входная металлическая дверь,

- в прихожей вместительный шкаф командор

- двери межкомнатные массив дерево,

- стены, потолки пол ровные.

- пол ламинат, в санузле и ванной плитка,

- стеклопакеты, счетчики,

В прихожей гардеробный шкаф командор во всю стену. Раздельный санузел и ванная в отличном состоянии. Удобная функциональная сантехника.

Удобное расположение дома. Тихий экологичный район. Развитая транспортная, социальная и потребительская инфраструктура. В торце дома дискаунтер «Грошик». мини-рынок Неман, Кинотеатр «Октябрь», У Вас и Вашей семьи будет замечательная возможность постоянно отдыхать в парке Фолюш, около реки Лососянка. 20 мин езды до озера Юбилейного. больница БСМП, стоматология, аптеки, лесопарк «Пышки», лесопарк «Лососно», река “Неман”, 2-й городской пляж. Квартира отлично подойдет людям ценящим уют и комфорт.

Отличное состояние подъезда. Рядом с домом несколько удобных парковок, просторная детская площадка. Поможем продать вашу недвижимость для приобретения новой. Полное юридическое сопровождение сделки. Возможно приобретение с кредитом и через кооператив «Жилищный баланс»

Звоните! А лучше- приезжайте! Оперативный показ и юридическое сопровождение сделки гарантируем.

177 314.80 BYN 61 000.00$ 3 200.62 BYN/м2 1 101.08$/м2
Предложить свою цену
Заполните телефон!
Введите цену или отметьте галочкой "Консультация по кредиту"
Нажимая "Отправить" я даю согласие на обработку персональных данных
Область
Гродненская область
Район области
Гродненский
Район
Октябрьский
Микрорайон
Фолюш
Кол-во комнат квартиры
2
Кол-во раздельных комнат
2
Площадь(О/Ж/К)
55.40/29.40/8.80
Этаж
4/7
Год постройки
2002
Материалы дома
Панель
Балконы
Лоджия: 1
Сан. узел (кол-во)
Раздельный: 1
Номер и дата договора
588/17 от 20-11-2025
Посмотреть на карте